Khác với những mẫu nhà biệt thự đẹp xa hoa tráng lệ, hay những mẫu nhà vườn mộc mạc gần gũi với thiên nhiên… mẫu nhà ống 3 tầng 1 tum sở hữu kiến trúc đơn giản, không quá cầu kỳ kiểu cách nhưng vẫn toát sự sang trọng nhất định. Nếu bạn đang đau đầu vì diện tích đất xây nhà bị bó hẹp, kinh phí xây dựng không dư giả, mong muốn thiết kế nhà hiện đại và tiện nghi,... thì mẫu nhà ống 3 tầng 1 tum là lựa chọn sáng suốt dành cho bạn. Angcovat đã thiết kế hàng trăm mẫu nhà ống đẹp trao đến tay khách hàng, vì thế chúng tôi hiểu và nắm rõ những ưu, nhược điểm và nguyên tắc cơ bản trong thiết kế và xây dựng để mẫu nhà phát huy tối đa ưu điểm để mang lại không gian sống đẳng cấp nhất cho chủ đầu tư.
Đặc trưng cơ bản mẫu nhà ống 3 tầng 1 tum đẹp hiện nay

Mẫu nhà ống 3 tầng 1 tum có những đặc trưng cơ bản nào?
Để hiểu về thiết kế nhà này, và mong muốn sở hữu mẫu nhà ống ưng ý, bạn có thể tham khảo những thông tin cơ bản về mẫu nhà này như:
Tìm hiểu khái niệm về nhà ống, nhà 3 tầng 1 tum
Nhà ống là nhà hình chữ nhật, kéo dài và hẹp ngang, thích hợp sử dụng trong những thiết kế nhà phố và nhà có diện tích sử dụng đất nhỏ
Nhà 3 tầng 1 tum là nhà thiết kế nhà gồm 3 tầng công năng và 1 tầng tum trên cùng, tầng tum thường được sử dụng làm nhà thờ, nhà kho, ban công,…
Ưu điểm của mẫu nhà ống 3 tầng 1 tum
Mẫu nhà ống sở hữ không gian sống, sinh hoạt tiện nghi được nhiều chủ nhà lựa chọn. Sở dĩ như vậy là bởi nó có nhiều điểm ưu việt và phù hợp với rất nhiều gia chủ. Cùng tìm hiểu những ưu điểm đó:
- Ưu điểm thứ nhất, nhà ống phù hợp với những ô đất có diện tích nhỏ và hẹp
Đây là ưu điểm đặc trưng của các mẫu nhà ống. Những ngôi nhà ống được thiết kế và xây dựng thông thường có kích thước mặt tiền nhỏ, chiều sâu lớn. Do đó, nó không có sự đòi hỏi quá lớn về mặt diện tích hay không gian. Do vậy, nó có thể phù hợp với nhiều ô đất có diện tích không lớn, thậm chí là rất hẹp.
Cũng bởi đó mà nó vô cùng phù hợp với những khu vực “ đất chật người đông” như thành phố, thị xã. Minh chứng cho điều này chính là hình ảnh những dãy nhà ống được xây dựng san sát, cận kề nhau. Đây là giải pháp tối ưu cho những ngôi nhà được xây dựng trên ô đất có diện tích nhỏ.
- Ưu điểm thứ hai chính là công việc thiết kế và xây dựng nhà ống nói chung và mẫu nhà ống 3 tầng 1 tum nói riêng tương đối đơn giản
Đối với một ngôi nhà có diện tích nhỏ, tốt nhất ta nên sử dụng phương án thiết kế nó thật đơn giản. Bởi đó, thông thường, nhà ống được thiết kế theo phong cách hiện đại, giản lược tối đa những chi tiết phụ, rườm rà. Do vậy, từ khâu thiết kế đến thi công nhà ống đều được diễn ra không quá cầu kỳ, phức tạp.
- Ưu điểm thứ ba là thời gian xây dựng không lớn
Nhà ống nói chung hay mẫu nhà ống 3 tầng 1 tum nói riêng đều có thời gian xây dựng không quá lớn. Nguyên nhân của thực tế này bắt nguồn từ chính lối thiết kế đơn giản, nhẹ nhàng của nhà ống. Với thiết kế đơn giản này, việc gia công, tạo hình và trang trí cho ngôi nhà. Thiết kế bố trí theo chiều dọc, giúp các phòng liên kết và thông với nhau, mang đến kiến trúc nội thất độc đáo và mới mẻ và vẫn đảm bảo công năng sử dụng cho gia đình.
Bởi đó, thời gian dành cho giai đoạn thi công phần thô cũng như hoàn thiện được giảm thiểu, thời gian xây dựng nhà ống cũng vì thế mà không dài.
- Ưu điểm thứ tư là chi phí xây dựng mẫu nhà ống 3 tầng 1 tum không quá cao
Chi phí xây dựng các mẫu thiết kế biệt thự 3 tầng, thiết kế nhà 3 tầng là nội dung được rất nhiều gia chủ quan tâm. Nhiều người có điều kiện kinh tế ở mức cao có thể lựa chọn xây nhà theo lối biệt thự sân vườn, biệt thự 2 tầng đẹp... Nhưng, nếu gia đình bạn không có điều kiện dư giả hay hạn chế về chi phí xây dựng, mong muốn 1 thiết kế nhà ở tầm trung, thì nhà ống chính là một phương án thiết kế nhà đáp ứng nhu cầu của nhiều gia chủ. Sở dĩ nói nhà ống 3 tầng 1 tum đẹp có diện tích xây dựng không quá lớn kết hợp với sự đơn giản trong thiết kế. Nhờ đó, nhà ống thường có chi phí xây dựng thấp hơn đáng kể so với những mẫu nhà ống 4 tầng có cùng diện tích.
Nhược điểm của mẫu nhà ống 3 tầng 1 tum

Mẫu nhà ống thường có diện tích eo hẹp và bí bách cho không gian sống
Bên cạnh những ưu điểm hoàn hảo về thiết kế, mẫu nhà này cũng chứa những hạn chế nhất định.
- Đầu tiên, mẫu nhà ống 3 tầng 1 tum thường mang lại cảm giác thiếu ánh sáng, bí bách
Đây là hạn chế lớn nhất của mẫu nhà ống, bởi thiết kế nhà chủ yêu xây dựng tại các thành phố có diện tích chật hẹp và nhà ở san sát nhau. Do đó, việc mở cửa sổ, thông gió là điều không dễ dàng. Cửa của nhà ống chủ yếu chỉ được đặt ở khu vực mặt tiền. Vị trí cùng số lượng này không thể cung cấp đủ ánh sáng cùng gió tự nhiên cho ngôi nhà. Đây chính là nguyên nhân dẫn đến thực tế nhà ống thường khá tù túng, thiếu sáng, thiếu gió tự nhiên. Bởi vậy, khi gia chủ quyết định xây mẫu nhà ống 3 tầng 1 tum đẹp thì cần phải hết sức lưu ý đến vấn đề này.
- Thứ hai, việc bố trí công năng sử dụng theo chiều dọc của mẫu nhà ống 3 tầng 1 tum khó khăn gặp nhiều hạn chế
Nhìn chung các mẫu nhà ống 3 tầng 1 tum có diện tích bề ngang có kích thước nhỏ nhưng chiều sâu lớn tạo cho không gian của nhà ống có dạng dài nhưng hẹp. Bởi vậy, việc bố trí những công năng sử dụng bên trong không gian như vậy trở nên tương đối khó khăn. Yêu cầu gia chủ khi sắp xếp công năng sử dụng của nhà ống cần tuân thủ bố trí theo chiều dọc đúng với chiều sâu của nhà. Bên cạnh đó cũng cần đảm bảo hài hòa về các yếu tố về phong thủy trong xây dựng nhà ở.
- Thứ ba, mẫu nhà ống 3 tầng 1 tum thường được thiết kế theo lối cao tầng
Xu hướng chung những mẫu nhà ống có diện tích nhỏ hẹp nên thiết kế gồm nhiều tầng và xếp chồng. Sẽ không có gì đáng để nhắc đến ở đây nếu ngôi nhà đó có sự cân bằng, tương quan về kích thước chiều rộng và chiều sâu và diện tích rộng. Điều đáng nói ở đây chính là ngôi nhà có dạng ống với diện tích nhỏ lại được xây cao tầng. Khiến cho ngôi nhà bị hút gió và nếu như việc chọn hướng nhà không tốt sẽ ảnh hưởng ít nhiều đến sức khỏe của các thành viên trong gia đình.
Thêm vào đó, nhà ống cao tầng buộc phải có cầu thang. Mà, cầu thang trong nhà ống hẹp ngang buộc phải hẹp và cao. Chính điều này đã gây bất tiện cho việc di chuyển giữa các tầng lầu bên trong ngôi nhà của con người, đặc biệt là người già và trẻ nhỏ. Gia chủ cần phải chú ý những nội dung này khi làm mẫu nhà ống 3 tầng 1 tum.
Xem thêm: Biệt thự 3 tầng 100m2
- Cuối cùng, thiết kế nhà ống ít mới mẻ, dễ bị rập khuôn thiếu sự mới mẻ độc đáo trong thiết kế
Nhà ống thường được thiết kế và xây dựng với hình thức đơn giản. Bởi vậy, thiết kế ngoại thất của nó thường có sự tương đồng. Thêm nữa xây dựng liền kề, san sát nhau nên thường xảy ra hiện tượng “ đụng hàng” với những ngôi nhà xung quanh gây nên sự nhàm chán đơn điệu cho thiết kế nhà ở.
Nguyên tắc thiết kế mẫu nhà ống 3 tầng 1 tum đẹp, thoáng đãng, tiện nghi
Vì mẫu mẫu nhà ống 3 tầng 1 tum có hạn chế là không gian sống bị bó hẹp và trải dài, nên trong quá trình thiết kế nhà để đảm bảo có được mẫu nhà ưng ý và hoàn thiện, gia chủ cần chú ý:

Mẫu nhà ống 3 tầng 1 tum có giếng trời cho không gian sống thoáng rộng
- Xem xét lô đất của mình có thích hợp để xây nhà ống hay không?
Nhà ống có đặc trưng là hẹp ngang và kéo dài, vì thế bạn nên hiểu rõ về lô đất của nhà mình và phong cách thiết kế nhà ống để có được lựa chọn hợp lý, tránh lãng phí diện tích đất và không thích hợp với nhu cầu sử dụng của gia đình.
- Bố trí mặt bằng công năng hợp lý gọn gàng để diện tích nhà được rộng hơn về chiều ngang.
Việc bố trí công năng là nội dung vô cùng quan trọng. Sở dĩ nói như vậy là bởi cách bố trí công năng là nhân tố quyết định lớn đến sự hài hòa, tiện lợi trong sinh hoạt gia đình của con người. Phương án thông dụng và cũng phù hợp nhất cho nhà ống là sảnh, phòng khách là không gian nội thất đầu tiên mà ta bắt gặp sau khi bước vào nhà. Kế đến là cầu thang, phòng bếp và phòng vệ sinh và mỗi công năng cần được ngăn cách bởi vách ngăn trang trí hoặc rèm... Gia chủ hoàn toàn có thể bố trí những không gian sinh hoạt chung ở tầng 1. Những công năng như phòng ngủ, phòng thờ, sân thượng ở tầng tum là hợp lý nhất.
Đồng thời nguyên tắc về bố trí cầu thang trong nhà 1 cách khoa học hợp lý, cũng giúp thiết kế mẫu nhà ống 3 tầng 1 tum của bạn không bị phạm phong thủy và sáng đẹp hơn.
- Sử dụng cây xanh giúp ngôi nhà gần gũi với thiên nhiên hơn
Mẫu nhà ống vì hẹp và thường sử dụng cho thiết kế nhà phố, nên việc gần gũi với thiên nhiên hay có không gian mở là khá khó khăn do hạn chế về diện tích. Để loại bỏ hạn chế này của mẫu nhà ống, các kiến trúc sư khuyên bạn nên bố trí cây xanh, hay những khu vực có cây xanh trong tổng thể thiết kế nhà để ngôi nhà vừa ấn tượng về thẩm mỹ mà cũng thoáng đạt hơn. Cách này sẽ được vận dụng triệt để trong thiết kế và thi công nhà ống, và trong cả những mâu thiết kế biệt thự nhà vườn thì đây cũng là điều cần đặc biệt lưu ý trong quá trình thi công xây dựng.
- Thiết kế giếng trời, hệ thống thông gió giúp nhà không bí bách và đón ánh nắng tự nhiên tốt nhất
Để khắc phục hạn chế về việc lấy sáng và gió cho ngôi nhà, ta nên bố trí hệ thống giếng trời phù hợp. Việc đặt giếng trời tại mẫu nhà ống 3 tầng 1 tum vừa có thể giúp lấy được ánh sáng và gió tự nhiên tốt nhất lại vừa có thể giúp không khí lưu thông tốt, tính thẩm mỹ của ngôi nhà cũng được nâng cao.
Chia sẻ 1 số mẫu nhà ống 3 tầng 1 tum có cách bố trí công năng hợp lý khoa học
Những mẫu nhà ống luôn được bố trí khoa học và hợp lý về công năng chắc chắn sẽ mang lại cho các bạn những giá trị sử dụng tích cực. Quan tâm bạn có thể tham khảo 1 số mẫu nhà dưới đây để có được lựa chọn ưng ý cho ngôi nhà của mình nhé.
Xem thêm: Biệt thự 3 tầng đơn giản
Mẫu 1: Mẫu nhà ống 3 tầng 1 tum đẹp phong cách hiện đại trẻ trung tại Hà Nội

Hình ảnh mẫu nhà ống 3 tầng 1 tum đẹp sang trọng và tinh tế
Thiết kế nhà ông Trường tại Hà Nội, với tổng diện tích xây dựng là 55m2. Đáp ứng mong muốn của gia chủ mong muốn thiết kế nhà đơn giản trong bố cục hình khối, không gian, tổ chức mặt bằng tự do, phi đối xứng, kiến trúc hiện đại tập trung mô tả vào mảng miếng, khối kiến trúc và sử dụng vật liệu, màu sắc để làm nổi bật lên khối kiến trúc. Các kiến trúc sư Angcovat bố trí công năng sử dụng của các tầng như sau:

Mặt bằng công năng sử dụng tầng 1: Không gian để xe 7.5m2, Phòng khách 18.2m2, Sảnh tầng 4.3m2, Phòng bếp ăn 13m2

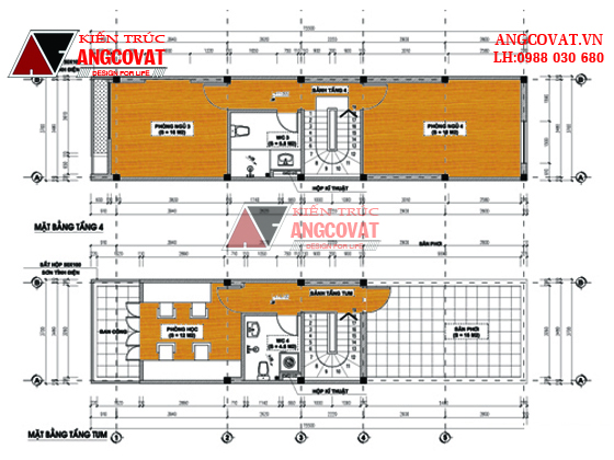
Bố trí công năng sử dụng tầng 2 của mẫu nhà ống 3 tầng 1 tum: 1 phòng SHC 20m2, 1WC 4.5m2, Sảnh tầng 4.3m2, Phòng ngủ con 12m2

Công năng sử dụng tầng 3 mẫu nhà ống 3 tầng 1 tum: Phòng ngủ bố mẹ 20m2, WC2 4.5m2, Sảnh tầng 4.3m2, Phòng ngủ con 12m2 hợp lý của thiết kế nhà

Tầng tum có công năng sử dụng gồm: Sân chơi 21m2, Phòng giặt 4.5m2, Sảnh tầng 4.3m2, Sân phơi 12m2
Mẫu 2: Mẫu nhà ống 3 tầng 1 tum đẹp mặt tiền 4m của gia đình chị Hạnh
Với mặt tiền xây dựng khá hẹp, ở mẫu nhà ống 3 tầng 1 tum này cần đòi hỏi các kiến trúc sư phải khéo léo trong bố trí công năng để giúp căn nhà thoáng rộng hơn. Thiết kế nhà ở Long Biên sử dụng 2 gam màu chính là màu trắng sáng và màu ghi trầm, kết hợp sử dụng đá marble có màu ghi xám để ốp tường. Tạo nên thiết kế ngoại thất ấn tượng có điểm nhận và giúp ngôi nhà có màu sắc bền đẹp hơn.
Tham khảo thêm: Biệt thự 3 tầng 1 tum hiện đại

Phối cảnh view 3 mẫu nhà tầng 1 tum đẹp và sang trọng được nhiều gia chủ lựa chọn
Mẫu nhà ống 3 tầng 1 tum được thiết kế hoàn toàn theo phong cách hiện đại, với điểm nhấn tầng tum được xây dựng mái bằng và bố trí giếng trời, giúp ngôi nhà thoáng rộng, diện tích mở và gần gũi với thiên nhiên. Ngôi nhà thu nhận được nguồn năng lượng tự nhiên nắng và gió nhờ thiết kế hiện đại và độc đáo này. Vì thế dù có diện tích mặt tiền khiêm tốn nhưng trông ngôi nhà vẫn rất khoáng đạt, khang trang và thu hút người nhìn, đảm bảo những công năng sử dụng thiết yếu của gia chủ.

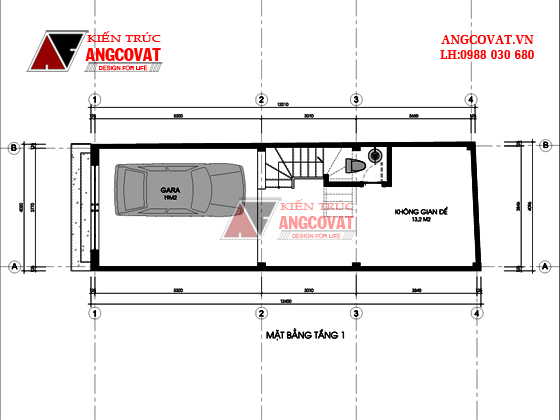
Công năng sử dụng của tầng 1: gara ô tô - Diện tích tầng 1: 50m2

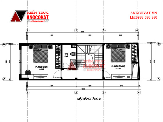
Hình ảnh thiết kế tầng 2: 2 phòng ngủ - Diện tích tầng 2: 50m2

Hình ảnh công năng sử dụng tầng 3 của mẫu nhà ống 3 tầng 1 tum: 1 phòng ngủ, 1 phòng thờ - Diện tích tầng 3: 50m2

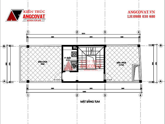
Thiết kế tầng tum bao gồm: Giặt + sân chơi + sân phơi - Diện tích tầng 4: 50m2
Mẫu 3: Mẫu nhà ống 3 tầng 1 tum phong cách hiện đại, sang trọng tại Nam Định
Tổng thể thiết kế nhà của chủ đầu tư Thường tại Nam Định là sự kết hợp hoàn hảo của màu trắng và màu ghi tạo nên sự tương phản nhẹ nhàng mà tinh tế khiến người nhìn ấn tượng. Sử dụng gam màu trắng không chỉ mang lại kiến trúc ngoại thất nổi bật và chúng cũng giúp ngôi nhà trông rộng lớn hơn so với kích thước mặt tiền 4m của ngôi nhà.. Thiết kế nhà 3 tầng 1 tum với 5 phòng ngủ đáp ứng nhu cầu sử dụng cho gia đình đông thành viên và đảm bảo 1 không gian sống tiện nghi đẳng cấp. Nếu bạn yêu thích sự đơn giản trong kiến trúc và không gian sống, với mức đầu tư chi phí khiêm tốn, thì mẫu nhà 3 tầng 1 tum theo phong cách hiện đại với diện tích sử dụng 72m2 là lựa chọn không tồi dành cho bạn và gia đình.
Tầng 1: 1 phòng khách, 1 phòng bếp ăn, 1 phòng vệ sinh chung: Phòng khách 26.5m2, phòng bếp ăn 20.5m2, phòng vệ sinh chung 3m2, sảnh tầng 4.5m2,
Tầng 2: 2 phòng ngủ, 2 phòng vệ sinh: phòng ngủ 1: 20m2, phòng ngủ 2 18m2,
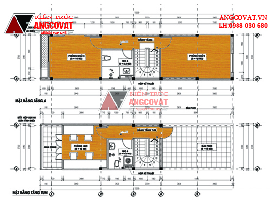
Tầng 3: 2 phòng ngủ, 1 phòng vệ sinh: phòng ngủ 4:19m2, phòng ngủ 5:22m2
Tầng tum: 1 phòng thờ, 1 sân chơi 12.5m2, 1 sân phơi, 1 phòng giặt đồ, sân phơi 17m2, phòng giặt 3.75m2, phòng thờ 15m2.
Mẫu 4: Mẫu nhà ống 3 tầng 1 tum nhà ở kết hợp kinh doanh thiết kế đẹp mắt độc đáo

Hình ảnh mẫu nhà ống 3 tầng 1 tum nhà ở kết hợp kinh doanh sử dụng ốp tường giả gỗ sang trọng
Thiết kế nhà khắc phục hạn chế về diện tích mặt tiền nhà phố 3,5m của mẫu nhà ống của chủ đầu tư nhằm mang đến được nét trẻ trung, năng động hiện đại cho ngôi nhà. Màu chủ đạo vẫn là sơn tường trắng và ốp vân gỗ cao cấp khiến cho ngôi nhà có cảm giác giảm đi chiều cao và làm tăng lên chiều rộng cho so với kích thước thật. Hơn nữa, chính thiết kế ngoại thất này cũng khiến ngôi nhà toát lên vẻ sang trọng và hiện đại cần có mà gia chủ mong muốn.

Bố trí công năng sử dụng của tầng 1 hợp lý: khu vực kinh doanh- Diện tích tầng 1: 40m2

Thiết kế tầng 2: khu vực kinh doanh - Diện tích tầng 2: 40m2

Mặt bằng công năng tầng 2 và 3 mẫu nhà ống 3 tầng 1 tum bao gồm: 2 Phòng khách, 1 Phòng bếp + ăn - Diện tích tầng 3: 40m2

Bố trí tầng tum: 2 Phòng ngủ, 1 WC - Diện tích tầng 4: 40m2 thích hợp cho sinh hoạt chung
Mẫu 5: Mẫu nhà ống 3 tầng 1 tum 4x12m đẹp, hiện đại
Nhà được xây dựng và quy hoạch trên lô đất có diện tích 300m2. Thiết kế nhà ống 3 tầng 1 tum tạo cảm giác khác biệt, mới mẻ. Nhà tựa như các khối nhà hình chữ nhật được các kiến trúc sư khéo léo xếp chồng mang đến cảm nhận về mặt hình khối kiến trúc ấn tượng và thu hút nhất.

Phối cảnh view 1 thiết kế nhà ống 3 tầng 1 tum gam màu trắng - đen sang trọng
Mẫu nhà ống 3 tầng 1 tum có những chi tiết kiến trúc rất đơn giản, nhẹ nhàng nhưng lại giúp cho tổng thể ngôi nhà đẹp hơn rất nhiều. Những chi tiết khá nhỏ thôi nhưng cũng khiến ngôi nhà ấn tượng và khác biệt so với những thiết kế đơn điệu nhàm chán khô cứng của nhiều mẫu nhà ống hiện nay. Với mẫu nhà này, các kiến trúc sư vẫn đảm bảo công năng sử dụng theo như mong muốn của gia chủ:
- Tầng 1: 1 Phòng khách, 1 Phòng bếp + Phòng ăn - Diện tích tầng 1 : 50m2
- Tầng 2: 2 Phòng ngủ - Diện tích tầng 2: 50m2
- Tầng 3: 1 Phòng ngủ, 1 Phòng giải trí - Diện tích tầng 3: 50m2
- Tầng tum: 1 phòng thờ, 1 Phòng làm việc - Diện tích tầng 4: 50m2

Phối cảnh view 2 thiết kế nhà đẹp 3 tầng 1 tum
Tất tần tật những đặc trưng cơ bản, nguyên tắc thiết kế, 1 số mẫu nhà ống 3 tầng 1 tum đẹp được các kiến trúc sư ANG chia sẻ trên đây là những tích lũy kinh nghiệm mà các kts có được thông qua quá trình thiết kế và làm việc nhiều. Hy vọng sẽ mang lại cho bạn những lời khuyên để có được lựa chọn mẫu nhà ưng ý nhất. Cần hỗ trợ tư vấn thiết kế nhà ống hay những công trình xây dựng khác, liên hệ ngay với kiến trúc sư của chúng tôi qua số hotline: 0988 030 680 .
Tham khảo thêm nội dung trước đó tại: mẫu nhà 1 trệt 1 lầu đơn giản








