Mỗi ngôi nhà trên thế giới có cách thiết kế phòng bếp khác nhau. Mỗi hộ gia đình có kích thước thiết kế nhà bếp và cách bố trí phòng bếp bao nhiêu m2 là hợp lý nhất. Diện tích bếp tiêu chuẩn là dựa trên nhu cầu sử dụng không gian bếp và diện tích tổng thể căn nhà phù hợp và tiện nghi nhất cho quá trình sinh hoạt.

Kích thước bố trí diện tích phòng bếp bao nhiêu m2 là hợp lý nhất
Diện tích phòng bếp bao nhiêu m2 là hợp lý?
Câu hỏi này là câu hỏi thường xuyên bắt gặp ở các gia đình đang ở giai đoạn cải tạo hoặc xây dựng mới cho phòng bếp của mình. Để giải đáp thỏa đáng cho câu hỏi trên cần căn cứ vào nhu cầu sử dụng và bố trí các trang thiết bị, diện tích tổng thể phù hợp cho thiết kế nhà đẹp

Đi tìm kích thước diện tích phòng bếp bao nhiêu m2 là hợp lý hợp phong thủy
Nếu chỉ thiết kế biệt thự 2 tầng đơn giản căn bếp nhỏ thì diện tích phòng bếp bao nhiêu m2 là hợp lý, hài hòa? Nếu có thêm các thiết bị đa năng cho căn bếp thì diện tích là ra sao? Ở Việt Nam, diện tích các phòng bếp được bố trí khác nhau miễn phù hợp thông thủy diện tích. Có thể chia ra làm các mốc như sau: diện tích nhỏ hơn 20m2, diện tích lớn hơn 20m2 và diện tích xấp xỉ 30m2. Còn nếu bố trí thêm phòng ăn và tích hợp quầy bar mini thì cần nới rộng ra thêm một chút sao cho lối đi lại di chuyển trong khu bếp thoải mái, hài hòa.
Các diện tích phòng bếp bao nhiêu m2 là hợp lý được chia làm các diện tích khác nhau. Bởi mỗi khu vực thiết kế có không gian diện tích đất lớn nhỏ nên khâu thiết kế được dựa trên quá trình chọn lựa xây dựng như khu vực nông thôn thường xuyên tụ tập nên diện tích phòng bếp lớn hơn diện tích phòng bếp khu vực thành thị rất nhiều.

Chiều cao thiết kế phòng bếp bao nhiêu m2 là hợp lý
Kích thước và diện tích phòng bếp bao nhiêu m2 là hợp lý tiêu chuẩn:
Thông thường trong các gia đình thì phụ nữ sẽ là người phụ trách chính việc nấu nướng. Vì vậy khi gia đình có ý định thiết kế nội thất phòng bếp đặc biệt là thiết kế tủ bếp nên cân nhắc và tính toán kỹ vị trí lắp đặt sao cho phù hợp với chiều cao của người hay sử dụng bếp trong gia đình.

Phòng bếp bao nhiêu m2 là hợp lý - câu hỏi mọi gia đình đều phân vân tìm câu trả lời
Vậy, phòng bếp rộng bao nhiêu là vừa ? Dưới đây là gợi ý thiết kế diện tích bếp tối thiểu cần có bạn nên tham khảo để bố trí không gian diện tích phòng bếp hợp lý nhất:
Phòng bếp bao nhiêu m2 là hợp lý? Cách sắp xếp đồ và phối màu nội thất phòng ăn ra sao
Không gian phòng bếp thường được kết hợp với phòng ăn và có diện tích khoảng 15-30m2, tùy thuộc vào kích thước căn nhà. Bố trí sắp xếp các phòng công năng dựa vào nhu cầu sử dụng của gia đình. Đây là kích thước tiêu chuẩn để có một không gian thoải mái, đầm ấm cho tất cả các thành viên trong gia đình cũng như sự tiện nghi trong cuộc sống hiện đại ngày nay. Tuy nhiên khi thiết kế phòng ăn không cần áp dụng quá cứng nhắc, khi vấn đề phòng bếp bao nhiêu m2 là hợp lý cũng không thể áp đặt một con số chung cho tất cả mọi gia đình được. Bạn nên tiến hành đo đặc tính toán cẩn thận hoặc có thể nhờ sự tư vấn của các kiến trúc sư có kinh nghiệm trong thiết kế mặt bằng để bố trí cân đối diện tích phòng khách, phòng bếp, phòng ăn, phòng ngủ,… trong bất kì căn nhà nào.

Phòng bếp bao nhiêu m2 là hợp lý với phong cách cổ điển
Bên cạnh đó, các bạn nên chọn lựa các đơn vị thiết kế thi công lành nghề nhất để sở hữu thiết kế biệt thự 2 tầng đẹp, hài hòa cùng gam màu tinh tế cũng như được tư vấn cụ thể nhất. Angcovat luôn sẵn sàng là đơn vị hàng đầu thiết kế cho bạn những mẫu nhà ưng ý, hài hòa cùng phối cảnh thiên nhiên, xung quanh căn nhà của bạn.
Bân cạnh đó, tùy thuộc diện tích phòng bếp rộng bao nhiêu m2 để lựa chọn đồ nội thất cũng như thiết kế gam màu trong phòng ăn. Ví dụ với các căn phòng có diện tích không quá lớn khoảng 10-15m2, bạn nên lựa chọn gam màu sáng, nội thất làm chủ yếu từ nguyên liệu gỗ tự nhiên hoặc gỗ công nghiệp. Bởi cách bố trí này sẽ khiến không gian phòng trở nên thông thoáng, rộng rãi hơn. Còn với các căn phòng có diện tích lớn từ 20m2 - 30m2, căn bếp nên sử dụng các tông màu mang đến sự ấm cúng, hài hòa, tinh tế với toàn bộ ngôi nhà.
Căn cứ vào qui trình hoạt động để xác định phòng bếp bao nhiêu m2 là hợp lý
Mỗi căn bếp luôn có các khu vực khác nhau như khu vực gia công thực phẩm, chờ giai đoạn chế biến món ăn, giai đoạn nấu ăn, giai đoạn dọn ra khu vực bàn ăn và giai đoạn rửa chén. Vì vậy, mỗi khu vực có yêu cầu thiết kế khác nhau như khu vực gia công thực phẩm yêu cầu về phần mặt bằng nước phải đầy đủ, thông thoáng. Khu vực chế biến món ăn yêu cầu sự hài hòa trong việc thiết kế bố cục công năng. Các khu vực được khái quát như sau:

Quy trình nấu nướng trong phòng bếp bao nhiêu m2 là hợp lý
Gia công thực phẩm –> Chế biến món ăn –> Nấu ăn –> Dọn ra bàn –> Rửa chén.
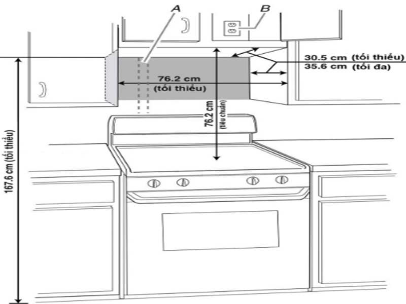
Thiết kế mỗi khu vực cần có cách tính toán và lưu ý riêng cụ thể về phong thủy, mặt bằng bố trí khác nhau. Tuy nhiên, cách thiết kế ra sao dựa vào công thức tính toán cho hợp lý khi lựa chọn kích thước phòng bếp bao nhiêu m2 là hợp lý. Các giai đoạn tam giác hoạt động về tủ lạnh, bếp nếu, chậu rửa của diện tích bếp tiêu chuẩn. Đối với phòng bếp bao nhiêu m2 là hợp lý thì tổng chiều dài của ba cạnh tam giác hoạt động từ 5,5m cho đến 6m. Khoảng cách giữa bồn rửa và bếp lò tối đa là 1,8m và các dạng bếp khác nhau như: hình chữ L, hình chữ U, hình chữ G, dạng thẳng, dạng song song và có thiết kế đảo bếp.

Chế biến thực phẩm phòng bếp bao nhiêu m2 là hợp lý
Kích thước lối đi phòng bếp bao nhiêu m2 là hợp lý
- Kích thước các lối đi các khoảng cách giữa bếp lò và bồn rửa chén, khoảng cách rộng tối thiểu 600 để khi rửa bát tránh văng nước vào bếp. Đồng thời nó cũng là khoảng đệm để ta có thể chứa các thiết bị như nồi, xoong, thớt,... trước khi đặt lên nấu.

Các cách bố trí phòng bếp bao nhiêu m2 là hợp lý: dạng chữ L, chữ U, song song
- Ngoài ra, các khoảng cách giữa tủ lạnh và bồn rửa thường không có quy định nhưng phải đủ diện tích để đựng các vật dụng như rổ rá đựng rau củ, thực phẩm dự trữ từ tủ lạnh ra chuẩn bị lên bồn rửa. Bạn cũng có thể để máy xoay sinh tố ở khu vực này.
+ Riêng về chỗ đặt tủ lạnh chỉ cần chừa khoảng cách rộng tối đa là 0,65m, vì tất cả các loại tủ lạnh 1 cánh cho dù bao nhiêu lít thì bề rộng kích thước tủ lạnh tối đa là 0,6m, trừ phi bạn sử dụng tủ lạnh side by side (dạng tủ lạnh 2 cánh) thì bề rộng chỗ đặt tủ lạnh phải là 1m.

Kích thước tủ phòng bếp bao nhiêu m2 là hợp lý
+ Một điều lưu ý nữa là đối với tủ lạnh 1 cánh thì hướng mở cửa là từ trái qua phải nên dây chuyền bố trí bếp : “tủ lạnh > chậu rửa > bếp nấu” sẽ bắt đầu từ phải qua, nếu bắt đầu từ bên trái thì khi bạn lấy thực phẩm ra bạn sẽ vướng tay vào cánh tủ lạnh đang mở.

Bố trí chi tiết nội thất mặt bằng phòng bếp bao nhiêu m2 là hợp lý
+ Thông thường bồn rửa đặt ở vị trí cửa sổ lấy sáng để cho việc thoát hơi ẩm được tốt, tránh đặt bếp lò ở vị trí cửa sổ vì gió lùa sẽ gây tắt lửa hoặc lùa khói và bay mùi vào nhà.
- Khoảng cách lối đi từ tường đến cạnh bàn bếp, lối đi giữa 2 bàn bếp hoặc lối đi giữa bàn bếp và bàn bếp đảo ở giữa, khoảng cách này tối thiểu là 0,9m để người đứng nấu thao tác được dễ dàng thuận tiện, kích thước chuẩn là 1,2m để người thứ 2 có thể đi băng qua sau lưng…
Nguyên tắc trong thiết kế phòng bếp bao nhiêu m2 là hợp lý
- Nên chú ý tới không gian làm việc: bồn rửa - bếp - tủ lạnh
- Tránh lãng phí các không gian trong bếp
- Tận dụng hết không gian của thiết kế nhà bếp hình chữ U

Chi tiết bố trí phòng bếp bao nhiêu m2 là hợp lý
- Chú ý thiết kế ánh sánh thường đủ: ánh sáng tự nhiên - ánh sáng nhân tạo
- Nên sử dụng đá ốp mặt bếp, tường bếp hài hòa: Sử dụng các loại đá ốp mặt bếp cùng tường bếp để tránh làm bẩn khu vực bếp, ẩm mốc, khó lau chùi
- Nên lắp hệ thống thông gió, hút mùi

Bố trí các khu vực phòng bếp bao nhiêu m2 là hợp lý hài hòa
- Thiết kế khu vực đảo bếp hợp lý
- Không chạy theo mốt
- Nên nhờ các kiến trúc sư tính toán, bố trí công năng phòng bếp bao nhiêu m2 là hợp lý
Những điều cần lưu ý cho phòng bếp bao nhiêu m2 là hợp lý
Bạn cần đảm bảo tính an toàn và thuận tiện:
+ Không mở cửa sổ gần bếp nấu.
+ Không treo màn cửa gần bếp nấu.

Bố trí không gian phòng bếp bao nhiêu m2 là hợp lý sang trọng, tinh tế
+ Có đủ ánh sáng tự nhiên và lưu thông không khí tốt.
+ Có đèn chiếu sáng ở bất cứ nơi nào mà có thể làm việc ở đó.
+ Thiết kế không gian lưu trữ đầy đủ và dễ sử dụng.
+ Lắp đặt đầy đủ các thiết bị cần thiết.

Kích thước chiều cao khu vực phòng bếp bao nhiêu m2 là hợp lý
Kích thước thiết bị phòng bếp bao nhiêu m2 là hợp lý
Để sử dụng đúng diện tích phòng bếp tiêu chuẩn phù hợp thì việc đo kích thước các đồ dùng bếp và thiết bị nhà bếp là rất quan trọng. Sau đây, Angcovat sẽ cung cấp sẵn cho bạn các chi tiết một vài đồ dùng nhà bếp và thiết bị nhà bếp khác nhau phù hợp nhu cầu gia đình bạn. Một vài phép đo dưới đây được ứng dụng phổ biến trong thiết kế nhà bếp với hình dáng chữ U, hình chữ L và nhà bếp song song có đảo bếp:

Không gian kích thước thiết bị phòng bếp bao nhiêu m2 là hợp lý
+ Kích thước lò nướng là: 595mm (h) x 595mm (w)
+ Kích thước lò vi sóng: Tiêu chuẩn: 600 x 400 (mm) hoặc phiên bản mới: 600 x 475 (mm)
+ Đối với tủ lạnh: Kích thước tùy theo khối lượng lít tủ chứa được. Tủ lạnh trung bình 1750mm (h) x 720mm (w)

Bố trí không gian phòng bếp bao nhiêu m2 là hợp lý
+ Kích thước bồn rửa trung bình Từ 600-800mm
+ Bếp nấu: 30 - 40mm (w) x 900mm (h)
+ Kích thước máy rửa chén: 860mm (h) x 600 / 605mm (w)
Ngoài ra: Các bạn cần lưu ý những phép đo này chỉ là gợi ý hướng dẫn. Cách tốt nhất là gia đình bạn có thể liên hệ với các kiến trúc sư thiết kế để biết kích thước chính xác cụ thể các thiết bị nhà bếp phù hợp với diện tích phòng bếp bao nhiêu m2 là hợp lý.

Bố trí không gian phòng bếp bao nhiêu m2 là hợp lý
Chiều cao thiết bị trong phòng bếp bao nhiêu m2 là hợp lý
Ngoài kích thước các thiết bị trong phòng bếp bao nhiêu m2 là hợp lý, các hộ gia đình nên chú ý chiều cao các thiết bị như sau:
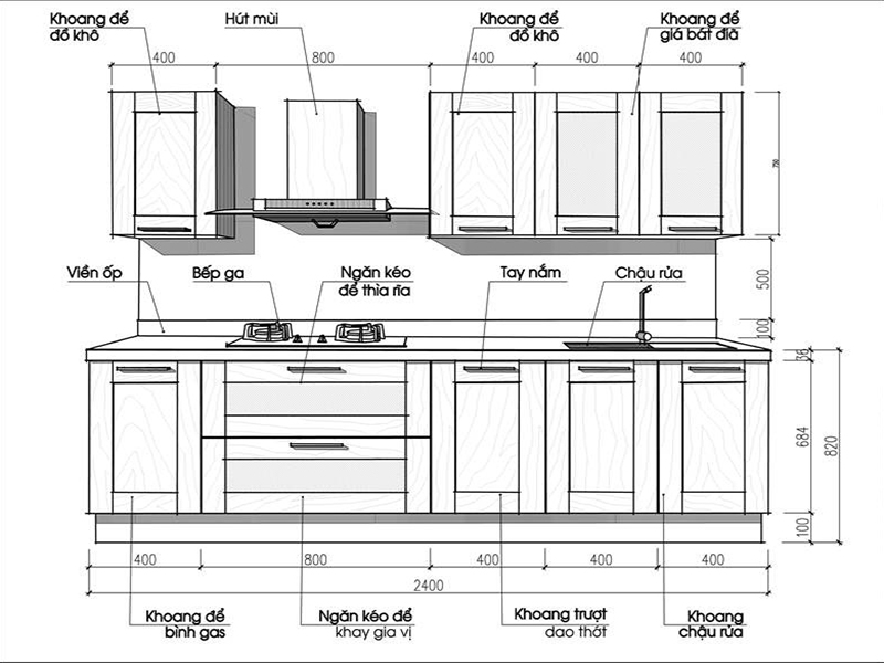
- Chiều cao chỗ đặt máy hút mùi âm là 150 tính từ đáy tủ bếp trên.

Kích thước tủ bếp phòng bếp bao nhiêu m2 là hợp lý
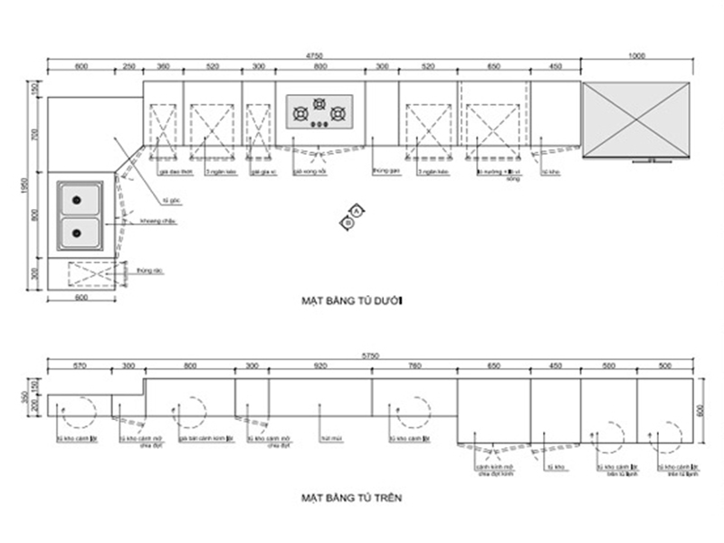
- Chiều cao tủ bếp trên, tủ bếp dưới và khoảng cách giữa 2 tủ bếp mình đã nói ở trên hoặc bạn có thể xem hình.
- Chiều cao của bàn bar theo tiêu chuẩn của người Việt Nam là 1100 – 1150, còn đối với người Châu Âu, Châu Mỹ là 1200.

Thiết kế chi tiết khu vực bố trí phòng bếp bao nhiêu m2 là hợp lý
- Chiều cao chỗ đặt vị trí lò vi sóng (lò Viba) âm tủ là 1200-1400 tính từ mặt đất đến đáy lò vi sóng.
- Chiều cao tủ bếp dưới nếu có đặt máy giặt cửa ngang âm tủ là 1000. Chiều cao vòi nước nếu để máy giặt lộ thiên là 100, chiều cao ổ cắm điện máy giặt là 1200.

Không gian phòng bếp bao nhiêu m2 là hợp lý
- Chiều cao bếp đảo kết hợp bar thì bàn đảo cao từ 800-900, chiều cao bar cao 1150, chiều cao từ mặt bếp đến đáy máy hút mùi là 750. Còn chiều cao bàn đảo không có bếp là từ 750 - 800, đèn thả ở trên nếu có thì cao cách mặt bàn 750 mới thao tác rõ được. Chiều cao mặt ghế cách đáy bàn tối thiểu 250 thì ngồi mới thoải mái không bị cấn đầu gối.
- Chiều cao ghế bar là từ 750 – 800, chỗ gác chân khi ngồi ghế bar cao 200 tính từ mặt đất. Tham khảo 1 số dạng ghế bar sau đây để biết kích thước cụ thể.
Diện tích phòng bếp tiêu chuẩn với kích thước các trang thiết bị nhà bếp bố trí khoa học mang đến không gian bếp hoàn hảo, tận dụng tối đa khoảng trống, sử dụng tối ưu nhất diện tích bếp tối thiểu đáp ứng cho nhu cầu nấu nướng sinh hoạt của các thành viên trong gia đình.

Bố trí từng không gian phòng bếp bao nhiêu m2 là hợp lý
Kết luận: Phòng bếp rộng bao nhiêu m2 để đạt kích thước tiêu chuẩn
Để hiểu về nhu cầu của khách hàng mong muốn thiết kế công năng các phòng ra sao, diện tích như thế nào cũng như phòng ăn rộng bao nhiêu m2 là hợp lý thì các kiến trúc sư chúng tôi thường đặt ra một số câu hỏi cho khách hàng, xem gia chủ có bao nhiêu người để sắp xếp nội thất ra sao cho hợp lý. Đương nhiên với số lượng thành viên lớn thì phòng bếp và phòng khách sẽ rộng lớn hơn đảm bảo đủ không gian cho cả nhà sum họp quay quần bên mâm cơm gia đình. Ngược lại nếu số lượng thành viên không quá lớn thì diện tích phòng ăn, bếp có thể bố trí nhỏ hơn, phù hợp với yêu cầu của gia chủ cũng như tạo được cảm giác ấm cúng.

Bố trí phòng bếp bao nhiêu m2 là hợp lý phong cách hài hòa
Diện tích phòng bếp rộng bao nhiêu m2 còn phải phụ thuộc vào kích thước của ngôi nhà. Có các diện tích nhỏ hơn 20m2, diện tích lớn hơn 20m2 và diện tích xấp xỉ 30m2. Hiện nay hầu hết các phòng ăn được kết hợp với phòng bếp và có kích thước khoảng 15m2, 20m2, 25m2 rất phổ biến ở nước ta. Tùy số lượng thành viên gia đình mà bạn muốn bố trí xây dựng căn phòng ra sao cho hợp lý, hài hòa. Nếu sử dụng phòng bếp cho mẫu biệt thự 2 tầng ở nông thôn thì bạn nên bố trí phòng có diện tích rộng, còn với các thiết kế ở khu vực thành thị diện tích nhỏ hơn thì phòng bếp rộng bao nhiêu m2 nên bố trí tùy diện tích căn nhà.

Thiết kế phòng bếp bao nhiêu m2 là hợp lý phụ thuộc các khu vực khác nhau
Ngoài ra, các bạn nên lựa chọn các đơn vị thiết kế thi công nhà ở phù hợp, ưng ý để có ngôi nhà đẹp mắt. Angcovat sẵn sàng là công ty thiết kế uy tín làm hài lòng các gia đình bố trí phong thủy hài hòa với bất kì căn phòng nào từ việc thiết kế phòng ngủ 16m2 có toilet đến bất kì mẫu thiết kế biệt thự, lâu đài hay nhà phố cho gia đình bạn.
Gọi ngay hotline 0988 030 680 để được kiến trúc sư tư vấn trực tiếp.








