Nhà bạn có nhiều thành viên, bạn muốn xây dựng một ngôi nhà với 4 phòng ngủ cho các thành viên. Bạn có thể tham khảo BST những mẫu biệt thự đẹp nhất 4 phòng ngủ mà chúng tôi đã tổng hợp
Nhà 1 tầng có 4 phòng ngủ
1. Mẫu thiết kế nhà cấp 4 hình chữ L diện tích 170m2 BT12066



Mẫu biệt thự đẹp hình chữ L với 4 phòng ngủ được bố trí tại các khu vực khác nhau và với diện tích gần bằng nhau. Trong đó, phòng ngủ 4 có nhà vệ sinh khép kín
2. Mẫu thiết kế biệt thự 1 tầng cổ điển diện tích 200m2 4 phòng ngủ BT122056


Biệt thự 1 tầng đẹp cổ điển với 4 phòng ngủ có diện tích bằng nhau, các phòng ngủ được bố trí theo kiểu đối xừng, cân đối. Các phòng đều được bố trí vệ sinh khép kín
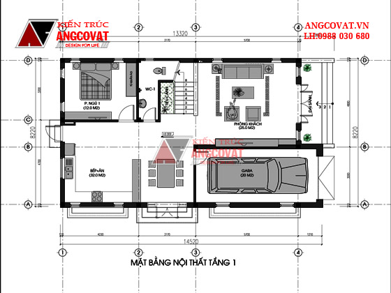
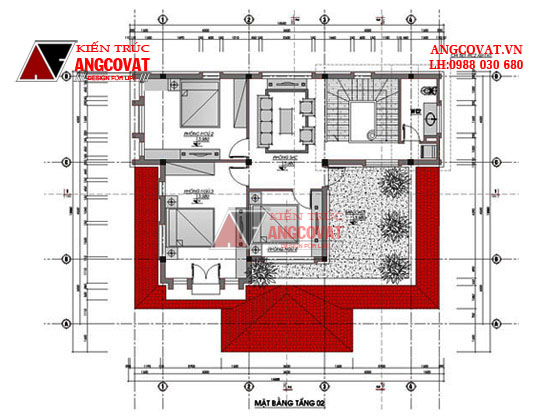
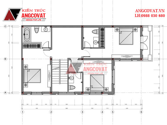
3. Mẫu nhà hình chữ u 1 tầng mái thái 160m2 BT111255



Các phòng ngủ của mấu nhà 1 tầng hình chữ U đều được bố trí đồ nội thất cần thiết. Trong đó, phòng ngủ 1 và 2 được bố trí bàn trang điểm, đây là không gian riêng tư dành cho bố mẹ và con gái trong nhà.
4. Mẫu biệt thự nhà vườn cấp 4 160m2 mái thái 4 phòng ngủ 10x16m BT127105


Biệt thự nhà vườn cấp 4 160m2 có cách bố trí các phòng ngủ theo hình chữ L. Phòng ngủ của bố mẹ được bố trí ngay cạnh phòng khách. Phòng ngủ của các con bố trí trong cùng một dãy để việc quản lý con được dễ dàng.
5. Mẫu nhà 1 tầng 4 phòng ngủ mái thái đẹp BT52975


Không gian nghỉ ngơi của mẫu nhà 1 tầng 4 phòng ngủ được gọn trong một khong gian. Phòng ngủ 1, 3 và 4 được bố trí bàn làm việc ngay trong phòng và có hệ thống vệ sinh khép kín.
6. Nhà vườn 1 tầng BTNT031520


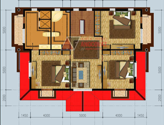
Nhà vườn 1 tầng với 4 phòng ngủ diện tích khác nhau. Trong đó một phòng ngủ có diện tích lớn nhất được trang bị đầy đủ tiện nghi cũng với bàn nhỏ và 2 ghế trong phòng và nhà vệ sinh khép kín. Đây là không gian dành riêng cho bố mẹ. Lựa chọn lát nền gỗ cho không gian phòng khách là sự lựa chọn hoàn hảo, mang lại sự dịu nhẹ, sạch sẽ và không kém phần hiện đại.
Nhà 2 tầng có 4 phòng ngủ
1. Mẫu thiết kế nhà 2 tầng mặt tiền 5m, diện tích 90m2 BT526046


Ba phòng ngủ của nhà 2 tầng đẹp mặt tiền 5m dành trọn không gian tầng 2 cho việc nghỉ ngơi. Phòng ngủ 3 và 2 có diện tích bằng nhau,


Phòng ngủ 1 được bố trí dưới tầng 1, ngay cạnh cầu thang, nội thất đầy đủ
2. Thiết kế biệt thự 2 tầng 2 mặt tiền 120m2 mái thái BT119046


Một phòng ngủ tại tầng 2 của biệt thự 2 tầng 2 mặt tiền được thiết kế ban công thoáng mát, bạn có thể hít thở không khí trong lành vào sáng sớm hay hóng gió ngắm trăng vào mỗi buổi tối mùa hạ


3. Mẫu thiết kế nhà 2 tầng 4 phòng ngủ diện tích 100m2, mặt tiền 8m BT308016


Mẫu thiết kế nhà 2 tầng 4 phòng ngủ ưu tiên tầng 2 cho không gian nghỉ ngơi. Phòng ngủ bố mẹ với diện tích 20m2 có ban công và nhà vệ sinh khép kín.


Phòng ngủ 1 được đặt cạnh lối ra phụ để tiện di chuyển.
4. Biệt thự 2 tầng tân cổ điển hình chữ L 90m2 BT18125




5. Kiến trúc nhà đẹp 100m2 2 tầng hình chữ L phong cách tân cổ điển đẹp BT53125



6. Thiết kế mẫu nhà 2 tầng 90m2 mặt tiền 8m hình chữ L mái thái hiện đại BT11125



Phòng ngủ 1 của nhà 2 tầng 90m2 có nhà vệ sinh khép kín. 3 phòng ngủ cò lại bố trí trên tầng 2. Riêng phòng ngủ 4 có bà trang điểm và ban công thoáng mát dành riêng cho không gian nghỉ ngơi của vợ chồng gia chủ.
7. Thiết kế nhà 10x15m 2 tầng kiểu Thái ở Bắc Giang BT426115




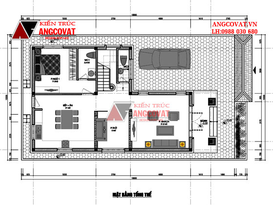
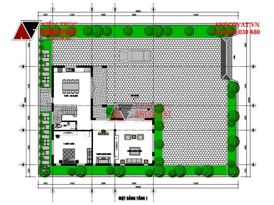
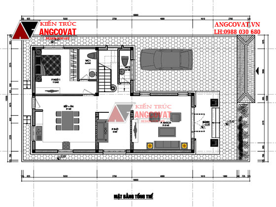
8. Thiết kế biệt thự sân vườn 2 tầng 4 phòng ngủ mái thái, kích thước 10x16m BT22375


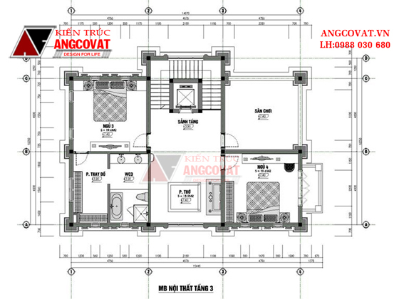
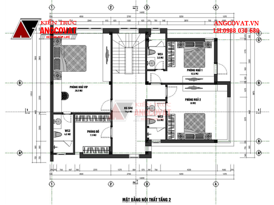
Khác với những mẫu thiết kế khác, biệt thự sân vườn 2 tầng 4 phòng ngủ chia 4 phòng ngủ cho 2 tầng: tầng 1 và tầng 2. Hai phòng 1 và 2 đều có vệ sinh khép kín.

9. Biệt thự 2 tầng BT21565



10. Biệt thự 2 tầng BT2855



11. Biệt thự 2 tầng BT8755



12. Biệt thự 2 tầng BT7755



13. Biệt thự 2 tầng BT5755



14. Biệt thự 2 tầng BT4755



15. Biệt thự 2 tầng BT3755



17. Mẫu biệt thự 2 tầng BT30215



18. Thiết kế biệt thự 2 tầng BT41201



19. Thiết kế nhà 2 tầng BT313415

20. Biệt thự 2 tầng đẹp BT61345

21. Thiết kế biệt thự 2 tầng BT271655



22. Thiết kế nhà 2 tầng BT261655

23. Mẫu biệt thự 2 tầng BT291655

24. Mẫu biệt thự 2 tầng BT301655

25. Thiết kế nhà 2 tầng BT211655

27. Thiết kế nhà 2 tầng BT1855

28. Thiết kế nhà 2 tầng BT37415



29. Biệt thự 2 tầng BT221655

30. Mẫu thiết kế nhà biệt thự 2 tầng mái thái đẹp BT10415



Nhà 3 tầng có 4 phòng ngủ
1. Thiết kế biệt thự 3 tầng kiểu pháp 150m2 4 phòng ngủ kiểu lâu đài BT321046
Mẫu thiết kế nhà đẹp 3 tầng kiểu lâu đài hiện cũng là lựa chọn của nhiều gia chủ bên cạnh những mẫu nhà 1, 2 tầng. Chúng ta hãy cùng đi xem những mẫu thiết kế nhà biệt thự đẹp 3 tầng kiểu lâu đài nào được ưa chuộng nhất nhé




2. Thiết kế nhà 3 tầng 100m2 hiện đại trên ô đất 220m2 BT121046




4. Thiết kế nhà 3 tầng 2 mặt tiền hình chữ L 80- 90m2 BT312046




5. Thiết kế biệt thự 3 tầng kiểu pháp 150m2 4 phòng ngủ siêu VIP BT112046




6. Nhà ống 3 tầng kiểu pháp mặt tiền 8m 4 phòng ngủ đẹp BT2775




9. Biệt thự 3 tầng BT32465

10. Biệt thự 3 tầng BT31855

11. Biệt thự 3 tầng hiện đại mặt tiền 8,5mx13m(110m2) BT21855




12. Biệt thự 3 tầng BT81755

13. Biệt thự 3 tầng BT51715

14. Biệt thự 3 tầng BT41755

15. Biệt thự 3 tầng BT31755


16. Biệt thự 3 tầng BT21755



17. Biệt thự 3 tầng BT51255



18. Biệt thự 3 tầng BT6755




20. Thiết kế biệt thự 3 tầng BT47415



Trên đây là bộ sưu tập những mẫu nhà có 4 phòng ngủ mà chúng tôi đã tổng hợp.
Mọi thắc mắc mời liên hệ: 0988 030 680








