Sở hữu không gian sinh sống hoàn chỉnh và đẹp mắt, bố trí công năng tiện nghi và khoa học, vì thế các mẫu thiết kế biệt thự 2 tầng mặt tiền 10m được ưa chuộng nhất hiện nay. Mẫu nhà là một trong số những không gian sống mơ ước đối với nhiều người giữa cuộc sống bộn bề và được nhiều gia chủ lựa chọn để xây dựng tổ ấm cho mình. Cùng chúng tôi nhìn ngắm những mẫu thiết kế biệt thự 2 tầng mặt tiền 10m dưới đây qua một vài hình ảnh phối cảnh 3D, các để giúp bạn hiểu rõ hơn về một không gian sống ấn tượng và đẳng cấp được nhiều người ưa chuộng.
Để sở hữu thiết kế nhà biệt thự 2 tầng mặt tiền 10m đẹp, bạn cần?
Trong quá trình thi công và thiết kế xây dựng nhà, có rất nhiều yếu tố quan trọng mà các gia chủ cần chú ý đền. Từ đó để tạo nên 1 thiết kế nhà đẹp và hoàn chỉnh cả về thẩm mỹ và yếu tố phong thủy. Cụ thể cần lưu ý gì, tất cả sẽ được chúng tôi chia sẻ ngay dưới đây:
Thứ nhất: lựa chọn phong cách kiến trúc thích hợp
Những mẫu thiết kế biệt thự 2 tầng mặt tiền 10mlà sự kết hợp hài hòa và độc đáo giữa kiến trúc ( Cổ điển, tân cổ điển, hoặc hiện đại) với mặt tiền thoáng rộng tiện nghi. Việc thiết kế kiến trúc, công năng sử dụng phải đảm bảo sự hòa quyện, hợp lý, đạt tỷ lệ hình khối, cũng như đảm bảo các không gian sử dụng để tạo nên kiến trúc của một ngôi biệt thự đẹp nhất và hợp lý nhất. Các mẫu nhà biệt thự 2 tầng mặt tiền 10m thường ít nhiều đều có diện tích mặt tiền rộng, có thể bố trí thêm mảnh sân vườn rộng rãi, đảm bảo tổng thể nhà sự kế nối và gần gũi với thiên nhiên.
Thêm nữa khi xây dựng mẫu nhà biệt thự 2 tầng mặt tiền 10m cần được trang trí kiến trúc đẹp và tạo sức hút cho ngoại thất của công trình. Đối với nhà mặt tiền 10m thường đều có sảnh rộng, giúp cho ngôi nhà có mặt tiền thoáng đãng, tiếp xúc nhiều nhất với thiên nhiên, và tăng tính thẩm mỹ, sự ấn tượng khi nhìn vào.
Việc thiết kế nhà biệt thự 2 tầng mặt tiền 10m cùng với các chi tiết kiến trúc đối xứng, cân đối với nhau, cách sử dụng vật liệu hoàn thiện cho không gian ngoại thất ngôi nhà như thế nào cũng được kiển trúc sư vận dụng một cách đầy tinh tế trong các sản phẩm thiết kế biệt thự, thiết kế nhà đẹp dành cho mọi đối tượng khách hàng trên khắp cả nước!
Thứ 2: Về phong thủy khi thiết kế biệt thự 2 tầng mặt tiền 10m
Mặt tiền được xem là một trong những yếu tố phong thủy quan trọng khi xây nhà. Mặt tiền là phía mặt có cửa chính, mặt hậu là phần đối xứng với mặt tiền hay còn gọi là lưng nhà. Đó là trong tường hợp nhà đơn thuần hoặc nhà chia lô, nhưng khi vị trí đất nhà bạn ở vào vị trí đắc địa ngã 3 đường có giao thông thuận lợi. Thì lúc đó mặt tiền trong thiết kế nhà sẽ tạo với thau kiểu chữ V, vẫn có sự đối xứng nhưng không hoàn toàn. Đây chính là điểm đặc biệt của kiểu nhà 2 tầng mặt tiền 10m mà chúng tôi muốn giới thiệu hôm nay. Các mẫu mặt tiền biệt thự dù lớn hay nhỏ đều đóng vai trò rất quan trọng trong thiết kế cũng như kiến trúc, phong thủy, chính vì thế mà các mẫu mặt tiền biệt thự mini cũng được chăm chút rất kĩ kiến trúc mặt tiền.
Đối với những thiết kế nhà biệt thự mặt tiền 10m bố trí công năng 2 tầng thì khi nhìn vào ngoại thất bạn sẽ thấy sự thoáng rộng rộng và bậc tâm cấp hoặc ngũ cấp kết nối với sân một cách hoàn chỉnh nhất. Không gian ngoại thất của các mẫu nhà biệt thự 2 tầng mặt tiền 10m thường được thiết kế xây dựng trên tiêu chí sạch sẽ, không có chướng ngại vật hay vật nhọn chỉ vào hướng cửa nhà, ngoài ra khu mặt tiền nên có nhiều chậu hoa cây cảnh hoặc các bồn hoa tươi thắm để tăng cường vượng khí vào nhà.
Vì mỗi vị trí xât dựng nhà 2 tầng mặt tiền 10m là khác nhau, nên trước khi xây nhà cũng cần phải xem phong thuỷ rất kỹ để chọn hướng nhà. Qua đó để xác định hướng chính của ngôi nhà và dựa vào đó để bố trí phòng khách, phòng thờ. Sau khi chọn được hướng nhà tốt nhất thì các gia chủ nên biết cách bố trí nhiều cây cối sân vườn tiểu cảnh đẹp hoặc có thể thiết kế mặt tiền hướng ra ao, hồ bơi. Một trường hợp khác, nếu khu đất của gia đình bạn tọa lạc tại vị trí gần ngã ba đường, có mặt tiền hướng ra đường thì việc xây dựng mẫu thiết kế nhà biệt thự 2 tầng mặt tiền 10m sẽ càng có lợi, công trình nhà ở của gia đình bạn sẽ luôn nổi bật và thu hút sự chú ý của người nhìn. Do đó những ngôi nhà biệt thự 2 tầng mặt tiền 10m nằm gần mặt đường lớn như vậy sẽ càng phát triển thịnh vượng hơn nếu gia chủ kết hợp buôn bán kinh doanh vô cùng thuận lợi. Đây được xem là những đặc trưng cơ bản nhất mà các gia đình cần tuân thủ khi thiết kế nhà biệt thự 2 tầng mặt tiền 10m đẹp dù ở phong cách nào.
Thứ 3: Đảm bảo công năng khi xây dựng nhà biệt thự 2 tầng mặt tiền 10m
Đối với thiết kế nhà 2 tầng, thích hợp cho gia đình từ 4 đến 6 người sinh sống. Vì thế để đảm bảo dược không năng sử dụng tiện nghi, thiết kế nhà đẹp mắt và hoàn chỉnh…thiết kế tiện nghi đáp ứng nhu cầu sử dụng của các thành viên trong gia đình bạn nên bố trí 3 phòng ngủ, 1 phòng khách, 2 nhà vệ sinh, nhà bếp+ ăn, khu sinh hoạt chung... cho thiết nhà nhà biệt thự 2 tầng mặt tiền 10m sang trọng và tiện nghi của mình nhé.
Thứ 4: Dự trù kinh phí xây dựng mẫu nhà biệt thự 2 tầng mặt tiền 10m
Khi thực hiện hồ sơ thiết kế biệt thự 2 tầng mặt tiền 10m tùy thuộc theo yêu cầu mà bạn có thể làm thêm gói dự toán công trình đi kèm thiết kế ngoại thất. Khi đó, bạn sẽ được đơn vị tư vấn bóc tách toàn bộ công trình, khối lượng công trình, vật tư công trình cần thiết là bao nhiêu đều thể hiện rõ ở hồ sơ dự toán công trình. Ở phần này, bạn sẽ được bóc tách khối lượng chi phí xây dựng tổng thể, chi phí nhân công, chi phí vật tự dựa trên đơn giá thực tế thời điểm xây dựng... rõ ràng và cụ thể nhất để tiện cho việc thi công, xây dựng. Tùy thuộc theo diện tích, cũng như phong cách kiến trúc của ngôi nhà mà sẽ có chi phí xây dựng khác nhau. Đối với nhà biệt thự biệt thự 2 tầng mặt tiền 10m, chi phí xây dựng bạn có thể tạm tính với mức giá trung bình như sau:
- Đối với mức đầu tư trung bình: Khoảng 5.000.000đ/m2
- Đối với mức đầu tư mức khá: Khoảng 6.000.000đ/m2
- Đối với mức đầu tư cao cấp hơn: Khoảng trên 7.000.000đ/m2
Lưu ý: Đây là đơn giá mà chủ đầu tư tự thi công, không phải là đơn giá của các đơn vị, nhà thầu thi công trọn gói...chính vì thế, khách hàng cần tính toán cẩn thận phần chi phí này để hạn chế tối đa những chi phí phát sinh trong quá trình xây dựng sau này nếu chẳng may gặp phải. Đối với các mẫu thiết kế biệt thự nhà biệt thự 2 tầng mặt tiền 10m dưới đây của chúng tôi, khi tư vấn với khách hàng, nắm rõ được nhu cầu thẩm mỹ và công năng sử dụng của mối công trình, cũng như khoảng mức chi phí đầu tư để đưa ra được phương án thiết kế nhà ở phù hợp nhất đối với từng yêu cầu cụ thể của khách hàng. Do đó, bạn cũng có thể nhờ các đơn vị thiết kế, với kinh nghiệm và những công trình thực tế họ đã thực hiện sẽ khái toán cho bạn mức đầu tư cơ bản để có được ngôi nhà theo như mong muốn của gia đình. Như thế bạn sẽ dự tính được khoảng kinh phí đầu tư xây dựng ngôi nhà cho gia đình mình và có được những quyết định đúng đắn khi xây nhà.
Tại sao ANG là đơn vị thiết kế nhà biệt thự 2 tầng mặt tiền 10m được nhiều người ưa chuộng
Tự hào là đơn vị có nhiều kinh nghiệm
Gần 10 năm Angcovat đã thiết kế và chinh phục được những hơn 1000 công trình với nhiều loại hình và phong cách kiến trúc, tuy nhiên chủ yếu là các công trình nhà dân dung: biệt thự 1 tầng, biệt thự 2 tầng, biệt thự 3 tầng,.. nhà phố, lâu đài, khách sạn, nhà hàng, nhà xưởng, các công trình công cộng, nhà thờ họ, bungalow, homestay. dự án cấp nhà nước ... có giá trị và đẳng cấp cao. Kiến trúc Angcovat luôn khẳng định những nỗ lực, đam mê, cố gắng không ngừng nghỉ để mang đến những điều trọn vẹn nhất với khách hàng, đối tác, cũng là những giá trị làm đẹp cho cuộc đời. Vì thế những công trình dù là khó khăn nhất cho việc thiết kế và thi công cũng được chúng tôi xử lý dễ dàng và nhanh chóng, mang lại sự hài lòng nhất cho khách hàng.
Đội ngũ kiến trúc sư trẻ, nhiệt huyết và tài năng của ANG
Sở hữu số lượng nhân viên đông đảo,hơn 30 kiến trúc sư và kỹ sư kinh nghiệm. Từ đó xây dựng quy mô công ty ngày càng lớn manh …Đội ngũ kiến trúc sư tài hóa cũng chính là yếu tố then chốt để chúng tôi có những sản phẩm đẹp mắt, đảm bảo thẩm mỹ vì thế luôn được khách hàng tin tưởng và ủng hộ.
Quy trình làm việc chuyên nghiệp, hiệu quả của ANG
Không phải tự nhiên công ty kiến trúc và đầu tư xây dựng ANG đươc đánh giá là một công ty uy tín. Bởi tại đây cũng sở hữu quy trình làm việc rất khoa học và rõ ràng, bảo đảm sự tin tưởng của chủ đầu tư, đó là cách làm việc theo giai đoạn thiết kế:
Bước 1: Tiếp nhận thông tin của khách hàng => tư vấn phương án mặt bằng và kiến trúc sơ bộ tại văn phòng
Bước 2: Nếu chủ đầu tư đồng ý, kí kết hợp đồng và đặt cọc 1/4 giá trị hồ sơ và khảo sát hiện trạng lô đất.
Bước 3: Triển khai các bản vẽ mặt bằng công năng để duyệt khách hàng, nếu khách hàng chốt phương án sẽ yêu cầu chủ đầu tư chuyển tiếp 1/4 giá trị hồ sơ.
Bước 4: Hoàn thành các bản vẽ phối cảnh 3d, nếu khách hàng duyệt phương án thiết kế phối cảnh sẽ đồng thời chủ đầu tư chuyển tiếp 1/4 giá trị hợp đồng.
Bước 5: Triển khai hồ sơ kỹ thuật thi công chi tiết và hoàn thành hồ sơ
Bước 6: Thanh toán đợt cuối cùng và bàn giao hồ sơ. Trước khi bàn giao, công ty sẽ phải kiểm tra hồ sơ kỹ càng.
Chiêm ngưỡng những bản vẽ thiết kế nhà biệt thự 2 tầng mặt tiền 10m ấn tượng nhất, mới nhất của ANG
Các mẫu thiết kế nhà biệt thự 2 tầng mặt tiền 10m dưới đây của chúng tôi được thực hiện trong thời gian vừa qua, được rất nhiều khách hàng tin tưởng và sử dụng dịch vụ trong suốt thời gian qua. Những công trình thiết kế biệt thự 2 tầng mặt tiền 10m với đầy đủ hình ảnh phối cảnh, bản vẽ mặt bằng công năng sử dụng,...hồ sơ thiết kế chi tiết để việc thi công ngôi nhà được diễn ra suôn sẻ nhất. Dưới đây là một số mẫu thiết kế tiêu biểu: Bạn có thể cùng chúng tôi tham khảo xây dựng cho gia đình mình:
Mẫu 1: Bà Phượng ở Hà Nội xây mẫu nhà 2 tầng mặt tiền 10m sâu 10m, diện tích 100m2
Công trình được thực hiện cho chủ đầu tư ở Hà Nội, là một trong những công trình nhà ở, mẫu biệt thự 2 tầng mặt tiền 10m nhận được phản hồi rất tốt từ phía khách hàng và độc giả. Với kiến trúc ngoại thất mang phong cách truyền thống, thể hiện được vẻ đẹp hiện đại, mới mẻ nhờ hệ thống đá, gạch ốp tường ngoại thất màu ghi sáng... Ngôi nhà hiện đại với mặt tiền 10m thực sự tạo nên điểm nhấn vô cùng thu hút và ấn tượng với xung quanh. Vật liệu lan can kính được sử dụng cho toàn bộ ban công của ngôi nhà cũng có tác dụng tuyệt vời trong việc tạo nên vẻ đẹp hiện đại và gần gũi với thiên nhiên từ loại vật liệu này.

Kiểu dáng mái ngói độc đáo trong mẫu thiết kế nhà biệt thự 2 tầng mặt tiền10m thoáng rộng

Tổng mặt bằng: Tư vấn thiết kế nhà 10x10 2 tầng mái thái

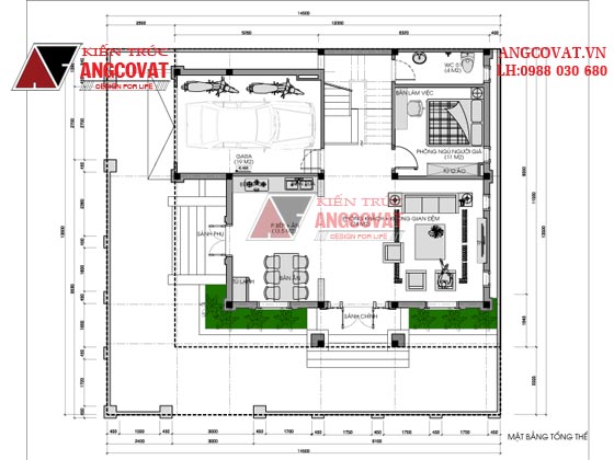
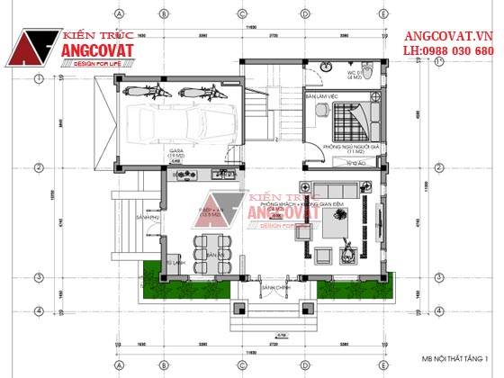
Thiết kế tầng 1 của biệt thự 2 tầng mặt tiền 10m gồm: 1 phòng khách (25m2), Phòng bếp + ăn (16m2), WC 1( 2.5m2), Phòng ngủ 1( 12m2), Phòng ngủ 2(12m2), WC 2(4.7m2)

Thiết kế tầng 2 bao gồm: Phòng ngủ 3(12m2), Phòng ngủ 4 (12m2), Phòng ngủ 5 (16m2), WC 3( 4.7m2)
Mẫu 2: Tư vấn thiết kế biệt thự 2 tầng mặt tiền 10m diện tích 80m2 độc đáo hút mặt người nhìn của Anh Tuấn ở Hà Nội
Không gian kiến trúc hiện đại của mẫu thiết kế biệt thự 2 tầng mái mặt tiền 10m được thể hiện rất sinh động. Các khối kiến trúc được thể hiện với tỷ lệ hợp lý, hệ thống lan can, ban công lan can được thể hiện mang lại vẻ đẹp cuốn hút cho kiến trúc của ngôi nhà. Các mảng miếng, hình khối kiến trúc mặt tiền của mẫu biệt thự 2 tầng mặt tiền 10m được làm nổi bật bởi hệ thống đá, gạch ốp tường màu nâu chìm. Màu sơn trắng giúp cho ngoại thất của ngôi nhà trở nên nổi bật và êm ái hơn. Thiết kế kiến trúc biệt thự 2 tầng mái ngói nhấn mạnh vào vẻ đẹp của mặt tiền 10m thoáng rộng, từ đó mà không gian ngoại thất trở nên có điểm nhấn hơn. Hệ thống mái thái giật cấp ấn tượng, giúp cho ngôi nhà trở nên bề thề, sang trọng hơn. Các không gian như giàn hoa trang trí, cây xanh tự nhiên kết nối với nhau mang lại tính thẩm mỹ của công trình. Thiết kế cửa nhà vuông vức, bằng gỗ cao cấp kết hợp kính tạo điểm nhấn không gian cho mẫu nhà này!

Mẫu biệt thự 2 tầng mặt tiền 10m kiến trúc độc đáo ghi điểm trong mắt người nhìn

Tổng thể mặt bằng mẫu nhà tiện nghi đáp ứng nhu cầu sinh hoạt của 4 đến người

Mặt bằng tầng 2 với công năng sử dụng gồm: Phòng thờ: 22.5m2, Phòng ngủ 3: 16.3m2, Phòng ngủ 4: 12m2, Ban công: 5.3m2
Mẫu 3: Ông Thưởng ở Quảng Ninh xây mẫu nhà 2 tầng mặt tiền 10m diện tích 100m2 kết hợp nhà ăn lớn sang trọng
Các mẫu thiết kế biệt thự 2 tầng mặt tiền 10m kết cấu mái thái được thực hiện với không gian kiến trúc hiện đại, thiết kế mái thái giật cấp mang lại ấn tượng về không gian sống tự nhiên, truyền thống cho công trình nhà ở đẹp và tiện nghi này. Hình khối kiến trúc hiện đại, rõ ràng được thể hiện trong kiến trúc đảm bảo sự chắc chắn và cân đối. Mái sảnh và mái hiên của ngôi nhà được đua ra một cách rõ ràng, màu sắc hợp lý với không gian gần gũi với thiên nhiên, cũng như các loại vật tư, đá ốp hiện đại. Hệ thống cửa chính, cửa phụ hiện đại, chất liệu cửa bằng gỗ tự nhiên, bằng kính hiện đại,... mang đến cho công trình sự chắc chắn và ấn tượng. Thiết kế mặt tiền 10m được thực hiện mang lại sự tinh tế và hấp dẫn cho ngoại thất và không gian sử dụng chung của ngôi nhà.

Tư vấn thiết kế nhà mặt tiền 10m với kết cấu bền vững, phục vụ nhu cầu sống của gia chủ

Toàn bộ công năng sử dụng của mẫu nhà 2 tầng mặt tiền 10m tại Quảng Ninh
Xem thêm: mặt bằng nhà biệt thự 2 tầng 200m2

Mặt bằng sử dụng tầng 1 nhà 2 tầng mặt tiền 10m gồm: 1 Phòng khách, 1 sảnh, 1 vệ sinh chung, 3 phòng ngủ - Diện tích tầng 1: 100m2

Công năng sử dụng của tầng 2 gồm: 2 phòng ngủ, 1 phòng thờ, 1 phòng sinh hoạt chung, 1 sảnh, 1 phòng vệ sinh chung - Diện tích tầng 2: 110m2m2
Mẫu 4: Tư vấn thiết kế biệt thự 2 tầng mặt tiền 10m, diện tích 120m2 mái ngói đỏ truyền thống của Ông Tuyền ở Hải Phòng
Đúng như mong muốn của gia đình ông Tuyền. các KTS angcovat xây dựng mẫu nhà 2 tầng của ông theo phong cách cổ điển của Pháp. Nhìn vào tổng thể kiến trúc bạn thấy được sự kết hợp hài hòa giữa các đường nét, hình khối với các họa tiết trang trí, tạo cho căn nhà vẻ đẹp giống như một tác phẩm nghệ thuật. Căn nhà được thiết kế với các hình khối đơn mà chắc chắn tạo cảm giác bền vững cho tổng thể công trình. Cột ôm liền với thân tường tạo vẻ vững trãi cho công trình, bên cạnh đó việc kết hợp các họa tiết cầu kỳ trên phần đế và đầu cột đã tạo vẻ mềm mại cho cột nhà.

Thiết kế nhà mặt tiền 10m tráng lệ xa hoa tại Hải Phòng

Tổng thể mặt bằng thiết kế khoa học, logic của mẫu nhà 2 tầng

Mặt bằng công năng của tầng 1 gồm: 1 Phòng khách, 1 phòng ngủ, 1 phòng bếp ăn, 1 vệ sinh chung, 1 gara ôtô - Diện tích tầng 1: 120m2

Công năng sử dụng của tầng 2: 1 Phòng sinh hoạt chung, 3 phòng ngủ - Diện tích tầng 2: 120m2
Mẫu 5: Ông Minh thiết kế nhà mặt tiền 10m 2 tầng 200m2 phong cách châu âu ở Quảng Ninh
Nhà với tổng công năng sử dụng bao gồm: Tổng diện tích: 200m2/sàn.
Tầng 1: 1 Phòng khách, 1 phòng ngủ, 1 phòng bếp ăn, 1 vệ sinh chung, 1 gara ôtô
Tầng 2: 1 Phòng sinh hoạt chung, 2 phòng ngủ, 1 Phòng thờ, 1 không gian giặt phơi đồ

Thiết kế nhà 2 tầng tiện nghi và sang trọng tại Quảng Ninh
Tại ANG có rất nhiều các mẫu thiết kế biệt thự 2 tầng mặt tiền 10m được nhiều khách hàng, chủ đầu tư tìm kiếm và mong muốn xây dựng, thiết kế cho gia đình mình.Với khoản chi phí đầu tư dự kiến hợp lý, và chuẩn bị hồ sơ thiết kế cẩn thận, chu đáo,... bạn có thể bắt tay vào việc xây dựng và hoàn thiện được ngôi nhà của mình theo như những ý tưởng thiết kế đã duyệt sẵn với kiến trúc sư từ trước đó.
Hiện nay mhững mẫu thiết kế biệt thự 2 tầng mặt tiền 10m này được chúng tôi thực hiện thiết kế và thi công với vẻ đẹp sang trọng, đa dạng phong cách kiến trúc và nhu cầu đa dạng phục vụ được đầy đủ các nhu cầu của nhiều gia đình hiện nay.
Những yêu cầu tư vấn thiết kế nhà ở, quý khách hàng liên hệ hotline: 0988 030 680 để được tư vấn miễn phí nhé.
Xem thêm: bản thiết kế nhà 1 tầng 2 phòng ngủ








