Thiết kế nhà phổ biến và gần gũi với văn hóa của người Việt, được nhiều chủ đầu tư lựa chọn để xây dựng hiện nay là mẫu nhà cấp 4 mái ngói đỏ tươi. Nhà không chỉ mang thiết kế đẹp mắt, mà với không gian 3 phòng ngủ rộng rãi, đã phần nào đáp ứng nhu cầu sinh hoạt của các thành viên trong gia đình.
Là tổng hòa của kiến trúc mái truyền thống, và những đường lối kiến trúc hiện đại, ngày nay các kiến trúc sư khi thiết kế thường kế thừa và phát triển sáng tạo thêm. Mang lại những mẫu nhà cấp 4 3 phòng ngủ mái ngói đẹp vừa thân quen, vừa mới lạ, vừa giản dị và vẫn hiện đại. Đừng bỏ qua thiết kế nhà ấn tượng này cho ngôi nhà tương lai của bạn nhé.
Tìm hiểu, ưu điểm và đặc trưng cơ bản của mẫu nhà cấp 4 3 phòng ngủ mái ngói đẹp
Khám phá ưu điểm nhà cấp 4 3 phòng ngủ mái ngói đẹp

Thiết kế nhà cấp 4 3 phòng ngủ mái ngói đẹp tận dụng tối đa diện tích cho xây dựng nhà ở tiện nghi
Mẫu nhà cấp 4 3 phòng ngủ mái ngói đẹp thường xuất hiện ở khu vực ngoại ô và các vùng nông thôn là chủ yếu. Tuy nhiên, thời gian gần đây, thiết kế nhà này cũng thích hợp với nhiều không gian thành phố lớn, mang lại thiết kế nhà độc đáo và điểm nhấn thu hút giữa không gian nhà ở cao tầng và biệt thự tại thành phố. Không phải tự nhiên mà mẫu nhà cấp 4 3 phòng ngủ mái ngói đẹp lại chiếm được cảm tình của nhiều gia chủ đến vậy. Có thể điểm qua một số ưu điểm của mẫu nhà cấp 4 gồm 3 phòng ngủ mái ngói đẹp để lý giải cho câu trả lời trên như sau:
Trước hết, kiểu nhà cấp 4 3 phòng ngủ mái ngói đẹp có sự kết hợp giữa hơi hướng truyền thống và hiện đại. Với thiết kế công năng này, bạn hoàn toàn có thể xây dựng kiểu nhà ống, nhà hình chữ U, chữ L vô cùng đẹp . Hiện nay, xu hướng nhà cấp 4 3 phòng ngủ mái ngói đẹp có phần phổ biến hơn nhà cấp 4 thông thường. Bởi thiết kế này bạn có thể dễ dàng xây dựng trên các lô đất từ 120m2, 130m2 hoặc 140m2 tuỳ theo mong muốn và chi phí xây dựng mà gia chủ sẽ lựa chọn được diện tích nhà phù hợp nhất. Về tổng quan thiết kế bên trong của căn nhà cấp 4 3 phòng ngủ mái ngói đẹp – mẫu nhà cấp 4 phổ biến hiện nay gồm có: 1 phòng khách, 1 phòng thờ, phòng bếp và phòng ăn liền kể, kết hợp 3 phòng ngủ và 1 WC chung cho cả gia đình (Đây là thiết kế nhà căn bản, nếu gia chủ có điều kiện hay diện tích xây dựng có thể bố trí thêm tầng lửng hay các không gian sinh hoạt chung của gia đình như nhà vệ sinh, sảnh phụ,... ).
Ưu điểm nữa với thiết kế nhà cấp 4 3 phòng ngủ mái ngói đẹp gia chủ có thể dễ dàng thiết kế kiến trúc ngôi nhà cấp 4 tổng thể, từ thiết kế cảnh quan, nhà ở và kết cấu mái ngói bền đẹp, được sắp xếp và bài trí khoa học và hài hòa với nhau. Hiện nay các chủ nhà thường hướng ngôi nhà mình đến những không gian sống rộng rãi và thoáng đãng. Vì thế lựa chọn thiết kế mái theo phong cách truyền thống của mẫu nhà cấp 4 chắc chắn sẽ trở thành một không gian lý tưởng để gia đình bạn sinh hoạt vui chơi vào những dịp cuối tuần quây quần bên nhau vô cùng ý nghĩa.
Nhà cấp 4 3 phòng ngủ mái ngói đẹp chính là mẫu nhà lý tưởng và mang nét đặc trưng nổi bật thể hiện cho truyền thống nhà ở nước ta từ xa xưa. Đặc biệt thiết kế những ngôi nhà này cũng phù hợp với điều kiện khí hậu, nhu cầu và đảm bảo yếu tố phong thủy cần có khi xây dựng nhà ở. Tạo nên thiết kế nhà hoàn hảo, là sự hòa hợp và giao thoa giữa thiên nhiên và con người, sắp xếp hợp lý giữa kiến trúc nhà và công năng các phòng hoàn hảo, đảm bảo những tiện nghi cho sử dụng hàng ngày. Mang đến không gian sống lý tưởng, hài hòa và thuận tiện sinh sống cho nhiều thành viên trong gia đình.
Ưu điểm quan trọng tiếp theo của mẫu nhà cấp 4 3 phòng ngủ mái ngói đẹp được nhiều người đánh giá cao chính là kinh phí xây dựng. Với mức kinh phí thiết kế thi công, rẻ hơn nhiều so với những mẫu nhà thiết kế phức tạp khác như nhà 2 tầng, nhà phố hay nhà ống, mẫu nhà cấp 4 3 phòng ngủ mái ngói đẹp có kinh phí ít hơn rất nhiều vì là thiết kế nhà cấp 4 3 phòng ngủ mái ngói đẹp, phù hợp với thu nhập của nhiều hộ gia đình ở nước ta … Tuy nhiên, mức chi phí dành cho xây dựng của những thiết kế này cũng dao động khác nhau dựa vào diện tích nhà ở, và thiết kế kiến trúc ngôi nhà, vì thế bạn nên dự trù kinh phí xây dựng và lựa chọn đơn vị thi công uy tín để đảm bảo được ngôi nhà hoàn thiện như mong muốn. Sở hữu nhiều ưu điểm về thẩm mỹ, công năng sử dụng và tiết kiệm chi phí.. không lạ khi đây là mẫu nhà được nhiều gia chủ Việt lựa chọn xây dựng cho ngôi nhà tương lai của mình.
Khám phá những đặc trưng mái ngói trong các mẫu nhà cấp 4 3 phòng ngủ mái ngói đẹp

Kết cấu mái nhà cấp 4 3 phòng ngủ mái ngói đẹp hiện đại
Nhà cấp 4 sở hữu lối kiến trúc với những đường nét tỉ mỉ nhấn nhá làm chủ đạo. Mang những đặc trưng cơ bản của lối kiến trúc thiên về mộc mạc và giản dị. Nhắc đến nhà cấp 4 nổi bật nhất là kết cấu mái ngói nhà cấp 4 đơn giản mà vẫn vô cùng nổi bật, thu hút.
Kết cấu mái chắc chắn, là các dầm chính đỡ mái mặt nằm ngang theo chiều dài chạy dọc ngôi nhà và vuông góc với khung nhà. Kết cấu nhà gồm từ 3 đến 4 lớp gồm: Lớp kèo, lớp đòn tay, lớp rui, lớp mè. Đầu tiên là lớp Rui, được coi là dầm phụ, có tác dụng trung gian kết nối giữa dốc mái và các trục chính trong nhà. Đảm bảo hoàn chỉnh và không gian thẩm mỹ, và giúp ngôi nhà vững chắc và kiến cố hơn. Các lớp mè là những bộ phận cực nhỏ, liên kết các lớp ngói. Việc sử dụng hệ kết cấu hoành - rui - mè, nhằm phân nhỏ nhịp của kết cấu đỡ mái thành hệ lưới vừa đủ để lát lớp gạch màm và lợp ngói bên trên. Với 4 lớp cấu tạo, mỗi lớp đều đóng vai trò riêng mang đến sự hoàn chỉnh cho kết cấu nhà vô cùng liên kết và bền đẹp.
Xem thêm: Biệt thự 1 tầng nhỏ xinh
Ngoài kết cấu bền chắc, mái ngói nhà cũng rất đa dạng, bao gồm nhiều chủng loại khác nhau. Trên thị trường hiện nay có từ 5 đến 6 loại mái ngói của nhà cấp 4. Tuy nhiên để dễ hiểu ngói được phân thành 2 loại : ngói đất nung và ngói bê tông. Mỗi loại đều có vẻ đẹp riêng của sản phẩm bao gồm ngói nội địa Việt và ngói nhập khẩu của Nhật, Trung Quốc, Thái,… . Về thẩm mỹ thì ngói bê tông có nhiều màu sắc có thể dễ lựa chọn màu phù hợp với kiến trúc và màu sơn ngoại thất của ngôi nhà. Ngoài ra sử dụng ngói nung cũng mang lại độ bền hoàn hảo cho thiết kế nhà và đây cũng là ưu điểm của mái ngói được nhiều người ưa chuộng sử dụng. Gía thành của hai loại ngói này cũng có sự khác biệt nhau, thông thường ngói nung sẽ có giá thành cao hơn ngói betong, vì công đoạn sản xuất khá phức tạp và cầu kỳ. Hơn nữa, ngói nung cũng là loại ngói truyền thống, chỉ sản xuất được số lượng ít trong 1 lần, nên giá thành sẽ cao hơn so với các loại ngói khác. Hiện nay giá của ngói nung là 1 đến 1,5 triệu 1m2 ngói nung. Còn ngói betong có nhiều ưu điểm nhưng giá thành rẻ hơn, chỉ vài trăm nghìn cho 1m2 ngói xây dựng nhà ở. Vì thế ngoài căn cứ vào công dụng thẩm mỹ của mái ngói, các chủ nhà cũng thường ước tính chi đầu tư xây nhà để lựa chọn được mái ngói nhà thích hợp.
Hướng dẫn bạn cách lớp mái ngói nhà cấp 4 3 phòng ngủ mái ngói đẹp đơn giản
Muốn lợp được mái ngói, bạn nên chuẩn bị mái ngói và nphương pháp lớp ngói hiệu quả nhất. Trước tiên khi lợp mái ngói nhà cấp 4 cần chú ý đến độ dốc của mái nhà
- Nếu độ dốc mái 30 độ, điều đó có ý nghĩa là cứ 1m đo theo chiều ngang, kèo phải nâng lên 0.57m
- Nếu độ dốc 30 độ chỉ cho phép chiều xuôi mái ngói tối đa là 10m.
- Trường hợp độ dốc 45 độ có chiều xuôi mái ngói từ 10m đến 15m.
- Mái có độ dốc trên 45 đến 60 độ có chiều xuôi mái ngói không giới hạn.

Hướng dẫn cách lợp mái nhà cấp 4 3 phòng ngủ mái ngói đẹp cho gia chủ
Để có được mái nhà lợp ngói chuẩn và đẹp, hàng đầu tiên bạn nên căn chuẩn về kích thước, khoảng cách giữa các nén ngói. Từ đó việc lợp các hàng thứ hai, thứ ba sẽ được đều thẳng và đẹp hơn. Lưu ý, cách thức lợp đúng nhất là lợp ngói theo cách thức phân thức phân khúc từ dưới lên. Cứ 10 viên gói đặt 1 dây dọi từ nóc đến phía dưới đây đảm bảo chúng thẳng hàng. Lợp từ phải qua trái, viên ngói đầu tiên phải đặt ở góc bên phải cách mép ngồi của kèo là 3cm. Đóng đinh cho mỗi viên ngói ở hàng đầu vào đòn tay bằng đinh 5cm cho đòn tay gỗ hoặc ốc vít 5cm cho đòn tay bằng kim loại. Chú ý ợp ngói lần lượt từ phải sang trái, từ dưới lên trên trong các mẫu nhà cấp 4 3 phòng ngủ mái ngói đẹp
Tiến hành các bước lợp máu ngói nhà cấp 4: Quan trọng nhất là khoảng cách lợp mái ngói: Đối với các loại ngói sóng hiện nay, không nên lợp các viên ngói quá khít theo mạch sẵn có bởi khi lợp mái, nhiệt độ mái tăng cao, sẽ gây ra hiện tượng giãn nở. Khi giãn nở vì nhiệt, các viên ngói sẽ được giãn sang 2 bên trái và phải. Đồng thời, vị trí giữa các viên ngói sẽ bị xô lệch ( để ý thấy qua quá trình sử dụng, mái nhà bạn ít nhiều sẽ bị kênh) lên so với vị trí lợp ban đầu sẽ dễ gây ra hiện tượng vỡ ngói. Vì vậy, lưu ý đầu tiên đó là phải lợp ngói với khoảng cách vừa đủ, có khoảng cách hợp lý và cách đều nhau.
Tham khảo thêm tại: Mẫu nhà 1 tầng mái ngói
Ước tính khoảng cách thích hợp nhất để tiến hành lợp ngói nhà cấp 4 3 phòng ngủ mái ngói đẹp trong khoảng từ 0.7 đến 1.2mm. Thao tác cần thiết của người thợ khi tiến hành lợp ngói đó là cần phải “ Lắc nhẹ” khi đặt từng viên ngói lên mè. Khi lắc nhẹ trước khi đặt, các viên ngói sẽ được đặt vào với khoảng cách đủ khít nhưng không quá chật, vẫn có khoảng cách vừa đủ để ngói giãn nở nhiệt. Bạn sẽ thắc mắc về việc lắc như thế nào được coi là đủ đối với ngói lợp, điều này sẽ còn phụ thuộc khá nhiều vào kinh nghiệm và độ khéo của người thợ lợp ngói.
Tư vấn chi phí xây dựng nhà cấp 4 3 phòng ngủ mái ngói đẹp và tiện nghi
Dự toán kinh phí xây nhà cấp 4 3 phòng ngủ mái ngói đẹp ở nông thôn
Chi phí đầu tư xây dựng luôn là vấn đề mà các chủ đầu tư quan tâm. Làm thế nào để hạn chế được tối đa chi phí đầu tư thấp nhất, hoạch định và dự trù kinh phí xây dựng để có được mức đầu tư hợp lý, tránh xây dựng tràn làn thiếu khoa học, chưa xây dựng xong nhà đã hết tiền và không được ngôi nhà như ý. Dưới đây là cách tính chi phí xây dựng ở mức khái toán đơn giản nhất, giúp bạn có thể năm được kinh phí xây dựng gần chuẩn nhất để có mức chi hợp lý:
Cách tính chi phí xây nhà cấp 4 3 phòng ngủ mái ngói đẹp
Chi phí xây nhà = Diện tích xây dựng X Chi phí xây dựng cho 1m2. Trong đó diện tích xây dựng là tổng diện tích mặt sàn mà chủ đầu tư dự kiến xây, chi phí xây dựng là đơn giá trung bình để xây 1m2 nhà cần bao nhiêu. Chiếu theo công thức tính chi phí xây dựng nhà cấp 4 3 phòng ngủ mái ngói đẹp hiện nay, các yếu tố tổng diện tích xây dựng và đơn giá trung bình của kiến trúc quyết định đến chi phí xây dựng nhà ở. Ngoài ra, các yếu tố về hệ số mái gia chủ cũng cần lưu ý để có cách tính chuẩn xác nhất:
Trước hết là diện tích xây dựng. Đối với mẫu nhà cấp 4 3 phòng ngủ mái ngói đẹp, diện tích xây dựng được tính bằng công thức diện tích mặt sàn x 1.4 của hệ thống mái dốc.
Tiếp theo là đơn giá xây dựng/m2. Đơn giá chi phí xây nhà cấp 4 3 phòng ngủ mái ngói đẹp là 5.5- 10 triệu/m2 (tùy phong cách thiết kế và phương án mái). Phong cách thiết kế nhà gồm 3 phong cách chính là cổ điển, hiện đại và tân cổ điển, với mức giá chênh lệch khác nhau. Để hiểu hơn, ta cùng đi xét xem 1 ví dụ cụ thể, nếu bạn đang muốn tính chi phí xây nhà 1 tầng bao nhiêu tiền có diện tích 100m2 theo phong cách tân cổ điển với mức độ đầu tư là 6,5 triệu đồng có mức chi phí xây dựng hoàn thiện ước tính như sau: 100 x 1 x 6.500.000 = 650.000.000 triệu đồng
Tương tự với ngôi nhà trên nhưng xây dựng theo phong cách hiện đại, với mức độ đầu tư là 5,5 triệu đồng thì kinh phí hoàn thiện tạm tính là:
100 x 1 x 5.500.000 = 550.000.000 triệu đồng
Với ngôi nhà 100m2, xây dựng theo phong cách cổ điển, chi phí xây dựng là 8 triệu đồng thì có mức chi phí tạm tính là:
100 x 1 x 8.000.000 = 800.000.000 triệu đồng
Lưu ý: Đây là mức chi phí tạm tính cho hoàn thiện nhà, chưa tính chi phí nội thất của nhà ở.
Xem thêm: nhà cấp 4 đơn giản
Lựa chọn đơn vị thiết kế và thi công chuyên nghiệp để có mức chi phí xây dựng thấp nhất
Nhiều gia chủ ý thức rất rõ vai trò và tầm quan trọng của việc chọn đơn vị thiết kế tốt. Bởi với những đơn vị thiết kế uy tín và lành nghề, không chỉ mang lại cho bạn 1 thiết kế ngôi nhà đẹp, mà còn đảm bảo những quy hoạch chính xác về diện tích và tận dụng được tối đa những công năng sử dụng của ngôi nhà. Vì thế mà tránh được tính trạng lãng phí trong quá trình thi công và sử dụng sau này của mỗi ngôi nhà. Thêm nữa, việc có được đội ngũ thợ thi công lành nghề vừa đảm bảo tiến độ xây dựng nhà ở, vừa hạn chế được những sai sót trong quá trình thi công nhà ở, từ đó có thể tiết kiệm tối đa chi phí xây nhà cho gia chủ.
Ngoài những yếu tố trên, có rất nhiều yếu tố như giá nhân công, giá vật liệu xây dựng,.. quyết định đến việc xây nhà cấp 4 3 phòng ngủ mái ngói đẹp. Vì thế để có được ngôi nhà đẹp như ý và tiết kiệm chi phí, quý khách hàng cũng nên tham khảo giá cả thị trường và lựa chọn cho mình đơn vị thi công tin cậy và uy tín nhất. Bạn có thể tham khảo công ty tư vấn kiến trúc và thi công xây dựng Angcovat với đội ngũ kỹ sư và kiến trúc sư dày dặn kinh nghiệm, chắc chắn sẽ mang đến cho bạn những mẫu nhà ưng ý và mức chi phí hợp lý. Là đơn vị tư vấn thiết kế và hỗ trợ xây dựng của hàng ngàn công trình, mang đến sự hài lòng cho nhiều khách hàng khác nhau dù là khó tính nhất. Angcovat luôn nỗ lực mang đến những giá trị thẩm mỹ hoàn hảo và vẫn đảm bảo công năng sử dụng cho mỗi thiết kế nhà.
Những mẫu nhà cấp 4 3 phòng ngủ mái ngói đẹp không thể bỏ lỡ
Mẫu 1: Thiết kế nhà cấp 4 3 phòng ngủ mái ngói diện tích 140m2

Nhà cấp 4 3 phòng ngủ mái ngói đẹp không gian xanh hiện đại
Với kiến trúc nhà biệt thự vườn 1 tầng đẹp, các mẫu thiết kế nhà biệt thự 1 tầng thể hiện được sự chắc chắn, ấn tượng và thiết kế bề thế đối với không gian sử dụng sang trọng và ấn tượng như thế này.

Mặt bằng công năng: mẫu nhà cấp 4 có 3 phòng mái ngói đẹp, sang trọng
Mẫu 2: Mẫu nhà cấp 4 có 3 phòng mái ngói đơn giản
Mẫu nhà cấp 4 3 phòng ngủ mái ngói đẹp mộc mạc và giản dị

Bản vẽ thiết kế nhà cấp 4 3 phòng ngủ mái ngói đẹp đầy đủ công năng
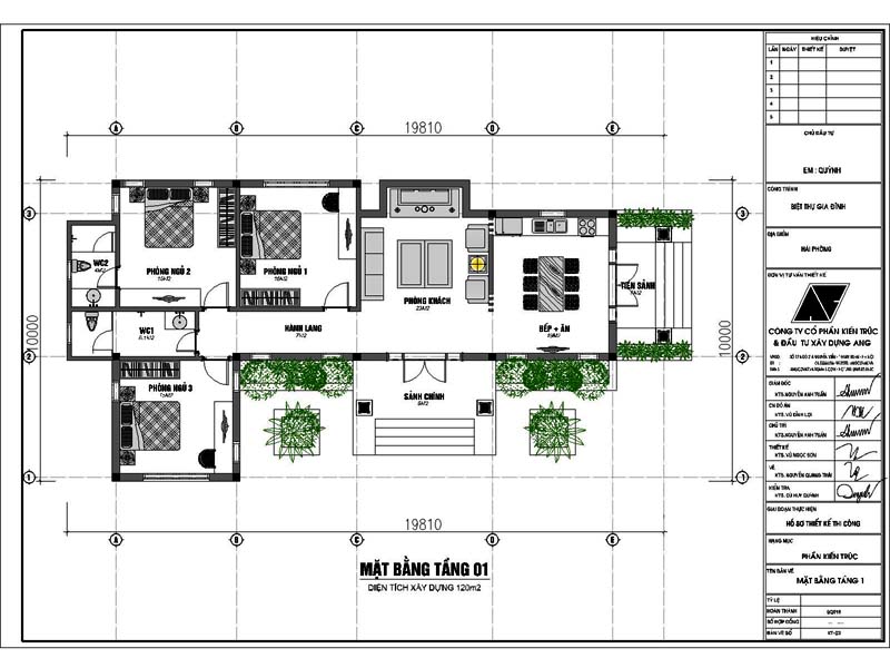
Mẫu 3: Mẫu nhà cấp 4 3 phòng ngủ mái ngói đẹp của gia đình bà Quỳnh

Thiết kế nhà cấp 4 3 phòng ngủ mái ngói đẹp diện tích 160m2

Tổng quan mặt bằng mẫu thiết kế nhà cấp 4 có 3 phòng mái ngói đẹp ở nông thôn
Mẫu 4: Nhà cấp 4 3 phòng ngủ mái ngói đẹp, hiện đại

Mặt tiền nhà cấp 4 3 phòng ngủ mái ngói đẹp diện tích 125m2 tiện nghi

Mặt bằng công năng sử dụng mẫu nhà cấp 4 có 3 phòng ngủ mái ngói đẹp
Với cách bố trí khoa học, tiết kiệm diện tích mẫu nhà cấp 4 3 phòng ngủ mái ngói đẹp đã mang lại cho chủ nhà 1 thiết kế nhà hoàn hảo cả về công năng và thẩm mỹ. Đây cũng là thiết kế nhà không bao giờ lỗi mốt và chiếm được nhiều cảm tính của các gia chủ. Hy vọng rằng những thông tin mà chúng tôi chia sẻ trên đây sẽ giúp bạn tự tin hơn khi xây dựng thiết kế nhà cấp 4 3 phòng ngủ mái ngói đẹp. Nếu bạn chưa lựa chọn được cho mình mẫu nhà ưng ý mà chúng tôi gợi ý trên đây có thể tham khảo tư vấn thiết kế nhà cấp 4 3 phòng ngủ mái ngói đẹp của các kiến trúc sự Angcovat, Liên hệ số
hotline: 0988 030 680
Xem thêm: Thiết kế nhà 2 tầng hướng Đông Bắc










